Kursy walut NBP: USD 3,98 | EUR 4,32 | CHF 4,53 |

Jesteśmy członkiem:           

Wyszukiwarka
Notes
Zgłoś ofertę
Kalkulator
zgłoś ofertę
Mieszkania
Domy
Działki
Lokale
Obiekty
Szczegóły oferty
Rodzaj oferty
obiekt produkcyjno_magazynowy ( wynajem )
Numer oferty
437998
Miejscowość
SZCZECIN, POMORZANY
Cena
5 600 PLN
Cena za mkw
28 PLN mkw
Powierzchnia
200.00 m2
Droga dojazdowa
asfaltowa
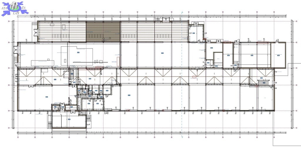
Opis
Do wynajęcia hala magazynowo - produkcyjna o łącznej powierzchni 1500 m2, z możliwością podziału na mniejsze moduły - od 200 m2.

Dostępność od 1 maja.

Cena 28 zł/m2 netto

Charakterystyka obiektu hala murowana,
obiekt wyremontowany,
wysoki standard wykończenia,
rampa rozładunkowa,
możliwość elastycznej aranżacji powierzchni,
idealna pod magazyn, produkcję lub logistykę,
Teren ogrodzony i monitorowany.
Atuty lokalizacji szybki wyjazd ze Szczecina,
bardzo dobry dostęp do autostrady,
dogodna lokalizacja dla transportu ciężkiego.

Dodatkowe udogodnienia bezpłatne miejsca parkingowe,
plac manewrowy dla TIR i samochodów dostawczych,
komfortowy dojazd dla pracowników i kontrahentów.
Wymagana jednomiesięczna kaucja brutto.

Zapraszam do kontaktu w celu uzyskania szczegółów oraz umówienia prezentacji.


Kontakt do agenta

Atalanta Nieruchomości
Marii Konopnickiej 32
71-132 Szczecin
tel.: 914875042
email: info@atalanta.szczecin.pl
fax: 914875031

Wyślij zapytanie

Imię i Nazwisko
Telefon
E-mail
Treść zapytania

Wyrażam zgodę na przetwarzanie moich danych osobowych przez firmę dla celów związanych z działalnością pośrednictwa w obrocie nieruchomościami, jednocześnie potwierdzam, iż zostałem poinformowany o tym, iż będę posiadać dostęp do treści swoich danych do ich edycji lub usunięcia.

Wyślij ofertę

E-mail
© 2026 Atalanta Nieruchomości. Wszystkie prawa zastrzeżone.