Kursy walut NBP: USD 3,98 | EUR 4,32 | CHF 4,53 |

Jesteśmy członkiem:           

Wyszukiwarka
Notes
Zgłoś ofertę
Kalkulator
zgłoś ofertę
Mieszkania
Domy
Działki
Lokale
Obiekty
Szczegóły oferty
Rodzaj oferty
mieszkanie ( sprzedaż )
Numer oferty
437775
Miejscowość
SZCZECIN, CENTRUM
Ulica
Podgórna
Cena
899 000 PLN kalkulator
Cena za mkw
15 183,25 PLN mkw
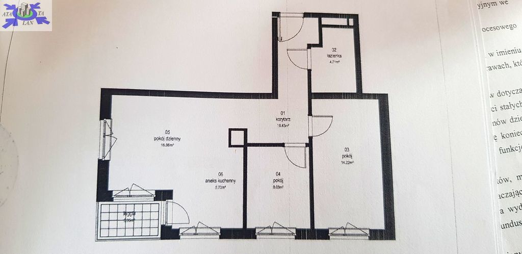
Powierzchnia
59.21 m2
Liczba pokoi
3
Piętro
5
Liczba pięter
6
Rodzaj kuchni
aneks
Stan mieszkania
idealny
Rok budowy
2019
Droga dojazdowa
asfaltowa
Opis
Oferujemy do sprzedania apartament na piątym piętrze apartamentowca wybudowanego w 2019 roku przy ulicy Podgórnej (obok PUM i Książnicy).

Na powierzchnię 59,21m2 składa się salon z aneksem kuchennym 21,76m2, dwie sypialnie 12,22 oraz 8m2, łazienka z WC 4,7m2 oraz przedpokój. Z salonu wyjście na balkon. Mieszkanie wykończone i umeblowane, gotowe do zamieszkania.

Czynsz 469 zł/m-c dla dwóch osób, ogrzewanie miejskie.

Integralną częścią oferty jest komórka lokatorska tuz przy wejściu do mieszkania (ok. 3m2) oraz miejsce postojowe pod budynkiem z wydzieloną komórką lokatorską za łączną kwotę 150 000 zł.

Budynek bardzo atrakcyjny, z windą i portiernią. Dodatkowym atutem jest piękny widok na Odrę . Lokalizacja doskonała.

Zapraszam na prezentację.

Dodatkowe informacje: umeblowane, balkon, internet, TV kablowa, winda, garaż, komórka

Kontakt do agenta

Atalanta Nieruchomości
Marii Konopnickiej 32
71-132 Szczecin
tel.: 914875042
email: info@atalanta.szczecin.pl
fax: 914875031

Wyślij zapytanie

Imię i Nazwisko
Telefon
E-mail
Treść zapytania

Wyrażam zgodę na przetwarzanie moich danych osobowych przez firmę dla celów związanych z działalnością pośrednictwa w obrocie nieruchomościami, jednocześnie potwierdzam, iż zostałem poinformowany o tym, iż będę posiadać dostęp do treści swoich danych do ich edycji lub usunięcia.

Wyślij ofertę

E-mail
© 2025 Atalanta Nieruchomości. Wszystkie prawa zastrzeżone.