Rodzaj oferty
dom blizniak ( sprzedaż )
Opis
Oferta sprzedaży domu jednorodzinnego dwulokalowego zlokalizowanego wśród niskiej zabudowy jednorodzinnej na zadbanym osiedlu w Dobrej z dostępem do wszystkich mediów.
Dojazd pod posesję drogą asfaltową i z polbruku.
Do każdego lokalu przynależne są 2 miejsca parkingowe oraz ogród zlokalizowany od strony południowo-zachodniej.
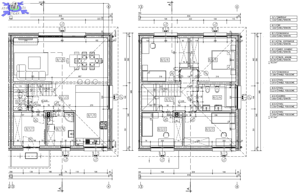
Na powierzchnię 133,49m2 składa się
Parter (66,27 m2)
- przestronny salon z jadalnią o powierzchni 30,34m2,
- aneks kuchenny (13,45m2),
- łazienka (6,19m2),
- wiatrołap (7,53m2),
- korytarz (6,83m2),
- pomieszczenie gospodarcze (1,93m2).
Piętro (67,15 m2)
- cztery pokoje (13,45m2, 13,30m2, 12,21m2, 9,41m2),
- korytarz (11,98m2),
- łazienka (6,80m2).
Dodatkowo na strychu znajduje się około 12m2 powierzchni do własnego zagospodarowania.
Niewątpliwym atutem jest brak skosów na piętrze, dzięki czemu pokoje są bardzo ustawne.
Standard deweloperski obejmuje
- System rekuperacji
- Pompę ciepła firmy York
- Ogrzewanie podłogowe w całym budynku
- Instalacje pod fotowoltaikę
- Ocieplenie budynku styropianem grafitowym o grubości 20 cm
- Okna trzyszybowe wraz z ciepłym montażem na profilach firmy REHAU, a w salonie okno typu HST na podwalinie (brak mostków termicznych)
- Ocieplenie poddasza i stropu pianą PUR
- Kanalizację sanitarną i deszczową
- Drzwi wejściowe antywłamaniowe z Relingiem
- Na parterze rolety zewnętrzne sterowane elektrycznie
- Biały osprzęt elektryczny
- Wylewane schody na piętro
- Schody na strych techniczne
- Podwójna ściana między lokalami z dylatacją
- Tynk zewnętrzny silikonowy
- Elewacja budynku koloru białego
Zagospodarowanie zewnętrzne
- Podjazdy, podejście do domu i tarasy wyłożone kostką z polbruku
- Dwa miejsca parkingowe przed domem
- Teren ogrodzony panelami z siatki, furtka na ogród
Pełna infrastruktura drogowa wokół budynku (drogi dojazdowe oraz chodniki wyłożone kostką z polbruku).
Kupujący jest zwolniony z 2% PCC.
Polecam i zapraszam na prezentację!