Kursy walut NBP: USD 3,98 | EUR 4,32 | CHF 4,53 |

Jesteśmy członkiem:           

Wyszukiwarka
Notes
Zgłoś ofertę
Kalkulator
zgłoś ofertę
Mieszkania
Domy
Działki
Lokale
Obiekty
Szczegóły oferty
Rodzaj oferty
mieszkanie ( sprzedaż )
Numer oferty
437678
Miejscowość
SZCZECIN, ZAWADZKIEGO
Cena
395 000 PLN kalkulator
Cena za mkw
9 404,76 PLN mkw
Powierzchnia
42.00 m2
Liczba pokoi
2
Liczba pięter
4
Stan mieszkania
do kapitalnego remontu
Rok budowy
1978
Opis
Oferuję na sprzedaż mieszkanie 2 pokojowe do remontu, bardzo atrakcyjnie położone, lokalizacja cicha, spokojna, wokół dużo zieleni. W pobliżu liczne obiekty użyteczności publicznej, blisko do komunikacji miejskiej, szkoły.

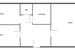
Na powierzchnię 42m2 składają się
- salon ok. 15m2
- sypialnia ok. 10m2
- oddzielna kuchnia ok. 6,5m2
- łazienka z prysznicem ok. 4m2 (wc osobno)
- przedpokój ok. 6,5m2

Mieszkanie o funkcjonalnym układzie wnętrz. Na podłodze panele, w kuchni, łazience oraz wc terakota. Okna pcv.

Czynsz administracyjny ok. 620zł
Do lokalu przynależy piwnica ok. 7m2.

Polecam z uwagi na lokalizację. Mieszkanie gotowe do zamieszkania od stycznia 2026.

Zapraszam na prezentację.

Kontakt do agenta

Atalanta Nieruchomości
Marii Konopnickiej 32
71-132 Szczecin
tel.: 914875042
email: info@atalanta.szczecin.pl
fax: 914875031

Wyślij zapytanie

Imię i Nazwisko
Telefon
E-mail
Treść zapytania

Wyrażam zgodę na przetwarzanie moich danych osobowych przez firmę dla celów związanych z działalnością pośrednictwa w obrocie nieruchomościami, jednocześnie potwierdzam, iż zostałem poinformowany o tym, iż będę posiadać dostęp do treści swoich danych do ich edycji lub usunięcia.

Wyślij ofertę

E-mail
© 2025 Atalanta Nieruchomości. Wszystkie prawa zastrzeżone.