Opis
Do wynajęcia komfortowa powierzchnia biurowa położona na piątym piętrze nowoczesnego budynku biurowo - usługowego klasy A, zlokalizowanego w Centrum Szczecina.
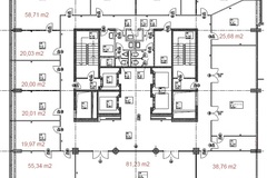
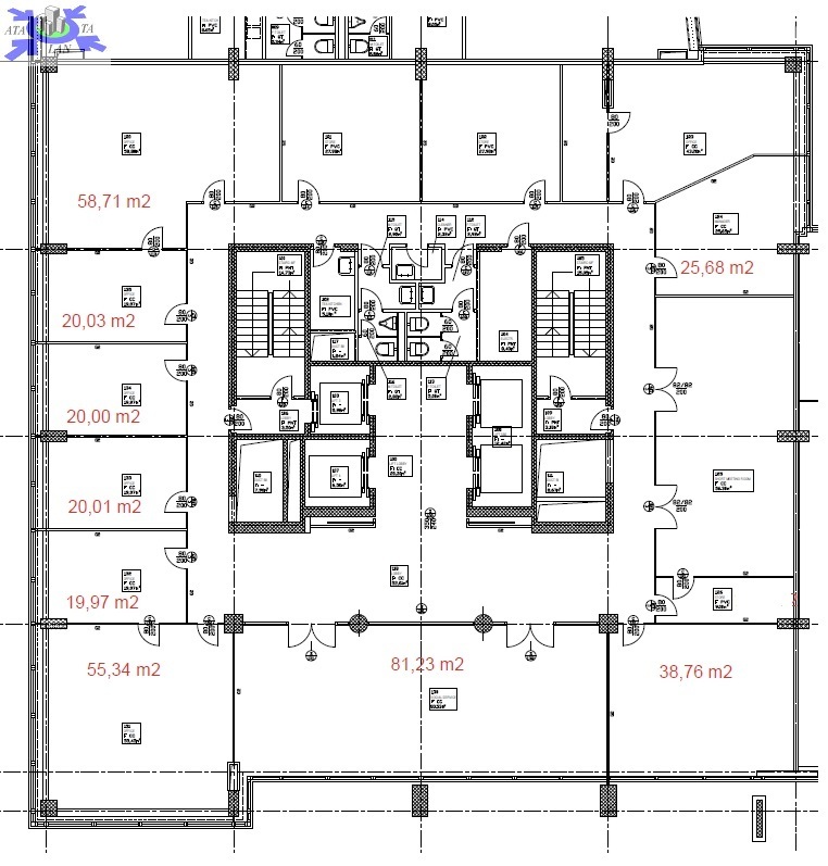
Na powierzchnię 340 m2 składa się 8 pokoi biurowych w systemie gabinetowym o powierzchniach od 20 do 58 m2 praz sala konferencyjna o pow. 80 m2
Do lokalu doprowadzona jest instalacja klimatyzacji, elektryczna, komputerowa (światłowodowa) oraz telefoniczna, zainstalowane są czujniki dymu i tryskacze.
Na podłodze położona jest wykładzina, ściany i sufity gładzone i malowane, oświetlenie rastrowe. Pomieszczenia świeżo malowane oraz nowa wykładzina podłogowa.
Do wspólnego użytku - jedynie z jednym najemcą - są pomieszczenie socjalne wraz z aneksem kuchennym oraz węzły sanitarne (świeżo po remoncie).
Budynek wyposażony w eleganckie korytarze i klatki schodowe, nowoczesne windy, recepcję i całodobowa ochronę wraz z systemem monitoringu i kontroli dostępu.
Budynek cechuje najwyższa jakość wykończenia wnętrz, elastyczna aranżacja przestrzeni oraz wysokiej klasy urządzenia i systemy gwarantujące komfort pracy. Budynek posiada wszelkie niezbędne udogodnienia, które są obecnie standardem na rynku nieruchomości komercyjnych. Dla użytkowników budynku dostępny jest parking podziemny (możliwość wynajmu miejsc parkingowych za dodatkową opłatą). Do oferowanej powierzchni proponowane są 4 miejsca postojowe. Istnieje możliwość zwiększenia tej liczby w trakcie negocjacji.