Kursy walut NBP: USD 3,98 | EUR 4,32 | CHF 4,53 |

Jesteśmy członkiem:           

Wyszukiwarka
Notes
Zgłoś ofertę
Kalkulator
zgłoś ofertę
Mieszkania
Domy
Działki
Lokale
Obiekty
Szczegóły oferty
Rodzaj oferty
dom wolnostojacy ( sprzedaż )
Numer oferty
437205
Miejscowość
DOBRA
Cena
1 250 000 PLN kalkulator
Cena za mkw
8 389,26 PLN mkw
Powierzchnia
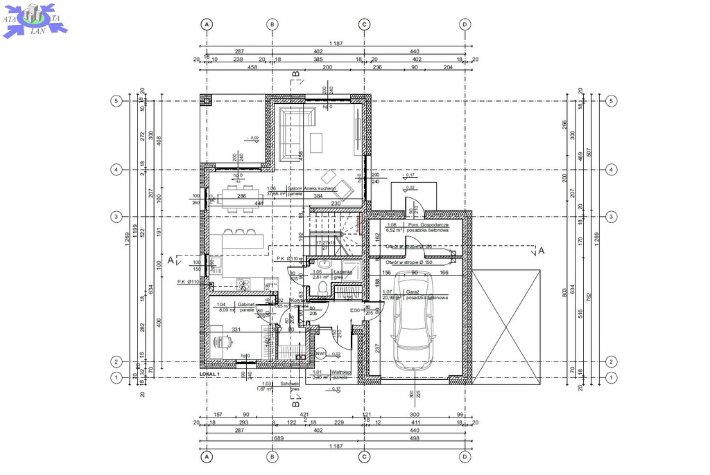
149.00 m2
Pow. działki
647.00 m2
Liczba pokoi
5
Liczba pięter
1
Rodzaj kuchni
otwarta
Stan domu
do wykonczenia
Rok budowy
2025
Droga dojazdowa
z kostki brukowej
Opis
Jeżeli chcesz zamieszkać w wolnostojącym domu z działką 647 mkw tuż przy Dobrej Szczecińskiej w Buku, ta oferta jest dla Ciebie!!!
Nie zwlekaj!
Duży i praktyczny dom z 5 pokojami, 2 łazienkami, pralnią, dużym garażem plus miejsce parkingowe obok garażu oraz ogród od strony zachodniej, to idealna nieruchomość dla Ciebie!

Nieruchomość jest już gotowa do wydania. Nie zwlekaj!

0% prowizji od Kupującego!

Dom w standardzie deweloperskim podwyższonym, posiada liczne udogodnienia
- system rekuperacji
- żaluzje fasadowe na parterze
- okno tarasowe przesuwne typu smart slide z prostym mechanizmem działania
- ogrzewanie podłogowe w całym domu ze sterownikami
- drzwi antywłamaniowe z dużym przeszkleniem typu lustro weneckie
- docieplenie dachu i stropu pianą pur
- teren działki w pełni ogrodzony
- przygotowany przepust pod instalacje fotowoltaiki
- docieplenie styropianem grafitowym 20 cm

Dom już wybudowany. W pobliżu las, liczne ścieżki rowerowe, komunikacja miejska, orlik, SP, przedszkole, sklepy.
Kupujący zwolniony z 2% pcc

Polecam i zapraszam na prezentację!


Dodatkowe informacje: garaż

Kontakt do agenta

Atalanta Nieruchomości
Marii Konopnickiej 32
71-132 Szczecin
tel.: 914875042
email: info@atalanta.szczecin.pl
fax: 914875031

Wyślij zapytanie

Imię i Nazwisko
Telefon
E-mail
Treść zapytania

Wyrażam zgodę na przetwarzanie moich danych osobowych przez firmę dla celów związanych z działalnością pośrednictwa w obrocie nieruchomościami, jednocześnie potwierdzam, iż zostałem poinformowany o tym, iż będę posiadać dostęp do treści swoich danych do ich edycji lub usunięcia.

Wyślij ofertę

E-mail
© 2025 Atalanta Nieruchomości. Wszystkie prawa zastrzeżone.