Opis
Planujesz skredytować to marzenie - zadzwoń.
Na sprzedaż wyjątkowa nieruchomość położona przy Bulwarach Szczecińskich, w prestiżowej lokalizacji w samym sercu Szczecina.
Mieszkanie w stanie deweloperskim, do własnej aranżacji.
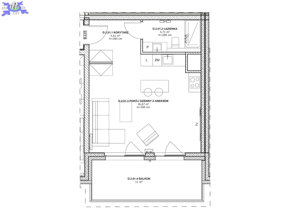
Lokal składa się z
- pokoju dziennego z aneksem o powierzchni 26,67 m2, z wyjściem na balkon - 11 m2
- łazienki z wc o powierzchni 4,71 m2
- korytarza o powierzchni 4,61 m2 z miejscem na szafę
Możliwość nabycia komórki lokatorskiej i garażu podziemnego za dodatkową opłatą 71 100 zł.
Budynek nowy, z windą, położony w doskonałym punkcie miasta - blisko bulwarów spacerowych, restauracji, sklepów i komunikacji miejskiej. To idealny wybór zarówno do zamieszkania, jak i jako inwestycja pod wynajem krótkoterminowy, która będzie przyciągać turystów i gości biznesowych przez cały rok.
Zapraszam na prezentację.
Dodatkowe informacje: balkon, winda, piwnica, garaż