Kursy walut NBP: USD 3,98 | EUR 4,32 | CHF 4,53 |

Jesteśmy członkiem:           

Wyszukiwarka
Notes
Zgłoś ofertę
Kalkulator
zgłoś ofertę
Mieszkania
Domy
Działki
Lokale
Obiekty
Szczegóły oferty
Rodzaj oferty
mieszkanie ( sprzedaż )
Numer oferty
435870
Miejscowość
GOLENIÓW
Ulica
Fryderyka Chopina
Cena
332 100 PLN kalkulator
Cena za mkw
10 281,73 PLN mkw
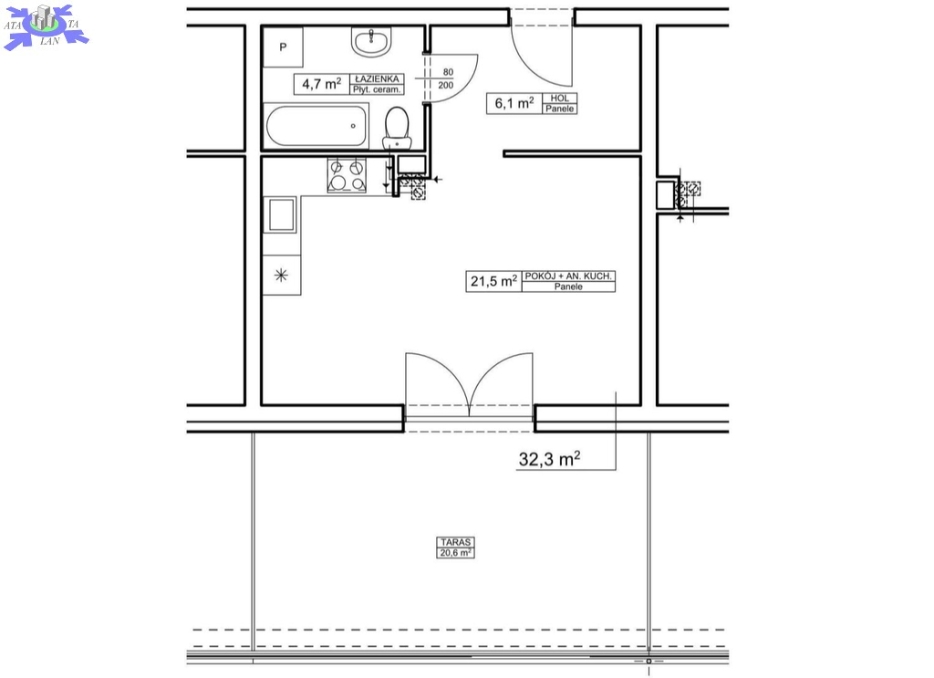
Powierzchnia
32.30 m2
Liczba pokoi
1
Liczba pięter
2
Stan mieszkania
do wykonczenia
Rok budowy
2024
Droga dojazdowa
asfaltowa
Opis
Na sprzedaż kawalerka w promocyjnej cenie!

Oferujemy Państwu przestronną i ustawną kawalerkę o powierzchni 32,3 m2, znajdującą się na parterze nowoczesnego budynku.
Lokal jest w stanie deweloperskim, co daje możliwość własnej aranżacji wnętrz.

Główne informacje
- ogrzewanie i ciepła woda z SEC
- niski czynsz
- możliwość wykupu miejsca postojowego w garażu lub dodatkowego miejsca parkingu na zewnątrz

Jeśli preferują Państwo gotowe rozwiązania, istnieje możliwość wykończenia mieszkania przez dewelopera, który zadba o każdy detal i stworzy idealne miejsce do zamieszkania lub wynajmu.

Warto wspomnieć, że posiadamy również mieszkania jedno , dwu i trzy pokojowe na parterze, pierwszym i drugim piętrze, zatem każdy może znaleźć odpowiednią przestrzeń dopasowaną do swoich potrzeb.

Promocyjna cena!
Obniżka z 369.000 zł na 332.100 zł

Zapraszamy do kontaktu w celu uzyskania szczegółowych informacji oraz umówienia się na prezentację.

Dodatkowe informacje: ochrona, telefon, internet, TV kablowa, winda, garaż

Kontakt do agenta

Atalanta Nieruchomości
Marii Konopnickiej 32
71-132 Szczecin
tel.: 914875042
email: info@atalanta.szczecin.pl
fax: 914875031

Wyślij zapytanie

Imię i Nazwisko
Telefon
E-mail
Treść zapytania

Wyrażam zgodę na przetwarzanie moich danych osobowych przez firmę dla celów związanych z działalnością pośrednictwa w obrocie nieruchomościami, jednocześnie potwierdzam, iż zostałem poinformowany o tym, iż będę posiadać dostęp do treści swoich danych do ich edycji lub usunięcia.

Wyślij ofertę

E-mail
© 2025 Atalanta Nieruchomości. Wszystkie prawa zastrzeżone.