Kursy walut NBP: USD 3,98 | EUR 4,32 | CHF 4,53 |

Jesteśmy członkiem:           

Wyszukiwarka
Notes
Zgłoś ofertę
Kalkulator
zgłoś ofertę
Mieszkania
Domy
Działki
Lokale
Obiekty
Szczegóły oferty
Rodzaj oferty
mieszkanie ( sprzedaż )
Numer oferty
435705
Miejscowość
SZCZECIN, ŚWIERCZEWO
Ulica
Hieronima Derdowskiego
Cena
539 000 PLN kalkulator
Cena za mkw
8 104,04 PLN mkw
Powierzchnia
66.51 m2
Liczba pokoi
3
Liczba pięter
8
Rok budowy
1976
Opis
Planujesz skredytować to marzenie - zadzwoń.

LOKALIZACJA

Mieszkanie znajduje się na popularnym i przestronnym osiedlu Świerczewo w jednym z wysokich budynków.
W okolicy znajdują się szkoły, liczne sklepy, tereny zielone, place zabaw, pływalnia i inne obiekty użyteczności publicznej.
Świerczewo to bardzo dobrze skomunikowana część miasta.

BUDYNEK

- blok z wielkiej płyty
- dobrze utrzymana klatka schodowa
- winda
- liczne ogólnodostępne miejsca parkingowe

NIERUCHOMOŚĆ

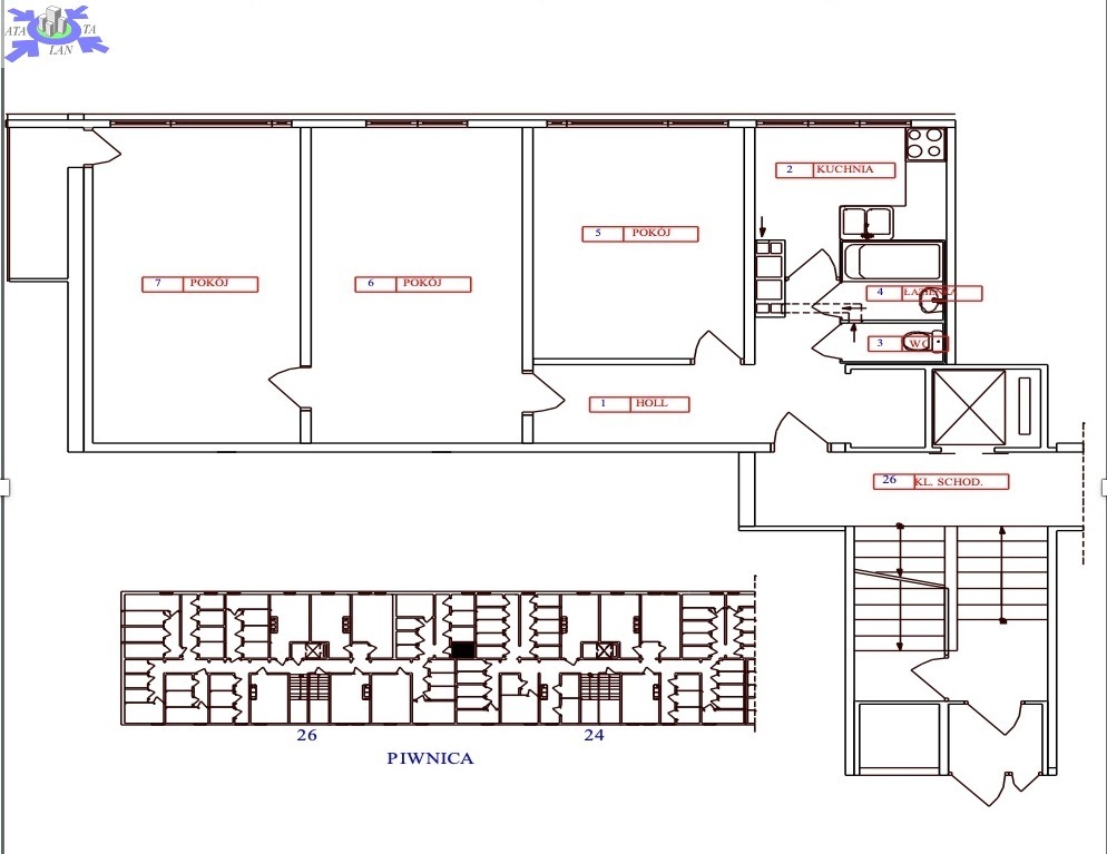
Przestronne trzypokojowe mieszkanie na wysokim parterze o powierzchni 66,51 m2.
Nieruchomość składa się z
- przedpokoju
- kuchni
- łazienki z wanną
- WC
- pokoju
- pokoju dziennego
- sypialni z balkonem

Mieszkanie w stanie dobrym. Kuchnia po remoncie.

DODATKOWE INFORMACJE

- czynsz administracyjny wynosi ok. 860 złotych i zawiera zaliczkę na ogrzewanie, ciepłą i zimną wodę, fundusz remontowy, opłaty administracyjne, wywóz śmieci
- do mieszkania przynależy piwnica
- spółdzielcze własnościowe prawo do lokalu z KW - możliwość zakupu przez osoby spoza UE.

Zapraszam na prezentację.







Dodatkowe informacje: balkon, winda, piwnica

Kontakt do agenta

Atalanta Nieruchomości
Marii Konopnickiej 32
71-132 Szczecin
tel.: 914875042
email: info@atalanta.szczecin.pl
fax: 914875031

Wyślij zapytanie

Imię i Nazwisko
Telefon
E-mail
Treść zapytania

Wyrażam zgodę na przetwarzanie moich danych osobowych przez firmę dla celów związanych z działalnością pośrednictwa w obrocie nieruchomościami, jednocześnie potwierdzam, iż zostałem poinformowany o tym, iż będę posiadać dostęp do treści swoich danych do ich edycji lub usunięcia.

Wyślij ofertę

E-mail
© 2025 Atalanta Nieruchomości. Wszystkie prawa zastrzeżone.