Kursy walut NBP: USD 3,98 | EUR 4,32 | CHF 4,53 |

Jesteśmy członkiem:           

Wyszukiwarka
Notes
Zgłoś ofertę
Kalkulator
zgłoś ofertę
Mieszkania
Domy
Działki
Lokale
Obiekty
Szczegóły oferty
Rodzaj oferty
mieszkanie ( sprzedaż )
Numer oferty
435629
Miejscowość
SZCZECIN, CENTRUM
Ulica
Mieczysława Niedziałkowskiego
Cena
1 035 000 PLN kalkulator
Cena za mkw
22 030,65 PLN mkw
Powierzchnia
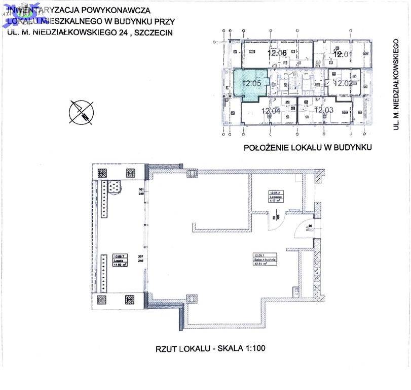
46.98 m2
Liczba pokoi
2
Piętro
12
Liczba pięter
18
Rodzaj kuchni
aneks
Stan mieszkania
do wykonczenia
Rok budowy
2023
Opis
Do sprzedania mieszkanie od strony północno-zachodniej w budynku SKY GARDEN przy ul. Niedziałkowskiego 24.
Widok na stronę Piotra Skargi, Felczaka.

Na powierzchnie 46,98 m2 składa się salon z aneksem kuchennym, sypialnia oraz łazienka (4,17m2).
Ogrzewanie podłogowe z sieci miejskiej oraz klimatyzacja.
Do mieszkania przylega loggia o pow. 11,92m2
W cenie jest również komórka lokatorska o pow. 2,43m2 oraz miejsce postojowe, obie nieruchomosci zlokalizowane na 4 pietrze budynku.

Aktualnie jest zmiana zarządcy. Dotychczasowy czynsz 1200 zł (zarząd nieruchomością wspólna, media) od października ma zostać obniżony.

Mieszkanie w standardzie deweloperskim, sprzedawane na rynku wtórnym przez firmę. VAT w cenie.
Polecam i zapraszam.




Dodatkowe informacje: ochrona, winda, garaż

Kontakt do agenta

Atalanta Nieruchomości
Marii Konopnickiej 32
71-132 Szczecin
tel.: 914875042
email: info@atalanta.szczecin.pl
fax: 914875031

Wyślij zapytanie

Imię i Nazwisko
Telefon
E-mail
Treść zapytania

Wyrażam zgodę na przetwarzanie moich danych osobowych przez firmę dla celów związanych z działalnością pośrednictwa w obrocie nieruchomościami, jednocześnie potwierdzam, iż zostałem poinformowany o tym, iż będę posiadać dostęp do treści swoich danych do ich edycji lub usunięcia.

Wyślij ofertę

E-mail
© 2025 Atalanta Nieruchomości. Wszystkie prawa zastrzeżone.