Kursy walut NBP: USD 3,98 | EUR 4,32 | CHF 4,53 |

Jesteśmy członkiem:           

Wyszukiwarka
Notes
Zgłoś ofertę
Kalkulator
zgłoś ofertę
Mieszkania
Domy
Działki
Lokale
Obiekty
Szczegóły oferty
Rodzaj oferty
mieszkanie ( sprzedaż )
Numer oferty
435508
Miejscowość
SZCZECIN, ŚRÓDMIEŚCIE-CENTRUM
Ulica
Wielkopolska
Cena
2 499 000 PLN kalkulator
Cena za mkw
14 989,2 PLN mkw
Powierzchnia
166.72 m2
Liczba pokoi
4
Piętro
1
Liczba pięter
1
Rok budowy
1920
Opis
Przedmiotem oferty jest wyjątkowe mieszkanie zajmujące całe pierwsze piętro piękniej poniemieckiej willi przy ul. Wielkopolskiej, w reprezentacyjnej części centrum Szczecina z kamienicami ujętymi w rejestrze zabytków.
Jest to budynek 5. lokalowy w otoczeniu zieleni i pięknych majestatycznych willi z końca XIX wieku.

Mieszkanie idealnie nadaje się na kancelarie, gabinety lub siedzibę firmy - istnieje możliwość prowadzenia nieuciążliwej działalności gospodarczej,
posiada także ogromny potencjał na podział na mniejsze mieszkania lub lokale.

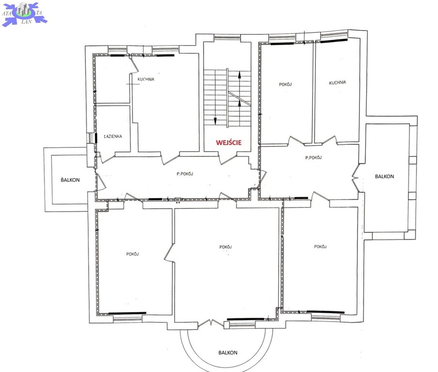
Lokal o powierzchni 166,72 m2, wysoki na 3,35 m, składa się z rozkładowych 4 pokoi, 2 korytarzy, 2 kuchni, łazienki i pomieszczenia gospodarczego.
Dodatkowo posiada 2 balkony i duży zadaszony taras.

Do mieszkania przynależy piwnica.
Możliwe jest użytkowanie części dużego ogrodu z nasadzeniami i starodrzewem.

W mieszkaniu przeprowadzono prace remontowe w zakresie
- wymiana instalacji elektrycznej w jednej części mieszkania
- wymiana pionu kanalizacyjnego
- modernizacja instalacji centralnego ogrzewania (indywidualna umowa zawarta z SEC-em)
- wymiana instalacji gazowej wraz z wymianą pionu gazowego
- wymiana stolarki okiennej (okna PCV)
- gładzenie i malowanie ścian i sufitów

Dużym atutem jest oryginalna stolarka drzwiowa w bardzo dobrym stanie.
W całym mieszkaniu istnieje także możliwość odkrycia oryginalnych podłóg drewnianych.

Lokal w dobrym stanie technicznym.
Stan prawny - pełna własność z Księgą Wieczystą.

Teren ogrodzony.
Pod budynkiem miejsca parkingowe dla mieszkańców.

Zapraszam do kontaktu i na prezentację.



Dodatkowe informacje: balkon, piwnica, parking, komórka

Kontakt do agenta

Atalanta Nieruchomości
Marii Konopnickiej 32
71-132 Szczecin
tel.: 914875042
email: info@atalanta.szczecin.pl
fax: 914875031

Wyślij zapytanie

Imię i Nazwisko
Telefon
E-mail
Treść zapytania

Wyrażam zgodę na przetwarzanie moich danych osobowych przez firmę dla celów związanych z działalnością pośrednictwa w obrocie nieruchomościami, jednocześnie potwierdzam, iż zostałem poinformowany o tym, iż będę posiadać dostęp do treści swoich danych do ich edycji lub usunięcia.

Wyślij ofertę

E-mail
© 2025 Atalanta Nieruchomości. Wszystkie prawa zastrzeżone.