Rodzaj oferty
dom blizniak ( sprzedaż )
Cena za mkw
7 608,7 PLN mkw
Droga dojazdowa
utwardzona
Opis
Przedmiotem ogłoszenia jest dom bliźniak położony w Mierzynie. Prezentowana inwestycja to wyjątkowe połączenie nowoczesnej architektury i kameralnej zabudowy z szybkim dostępem do infrastruktury handlowo-usługowej.
Dzięki wyjątkowej lokalizacji zaledwie kilkanaście minut dzieli Cię od centrum Szczecina.
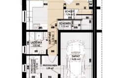
Każdy z domów ma powierzchnię 138m2 + strych i jest usytuowany na działce o powierzchni 300m2. Dom bliźniak został zaprojektowany z troską o komfort użytkowania wszystkich pomieszczeń wyłączając ograniczenia wynikające z różnicy wysokości pomieszczeń.
Atuty nieruchomości
wszystkie pomieszczenia mają pełną wysokość (brak skosów)
własne ujęcie wody
ogrzewanie i ciepła woda - nowoczesna pompa ciepła bardzo cicha (Samsung)
szeroka droga dojazdowa (10m szerokości)
ogrodzenie w cenie
zastosowano okna trzyszybowe
Zapraszamy do kontaktu i prezentacji domu.
Dodatkowe informacje: garaż