Opis
W nowej inwestycji, w której zastosowano nowoczesne rozwiązania i nowoczesny design w centrum Szczecina
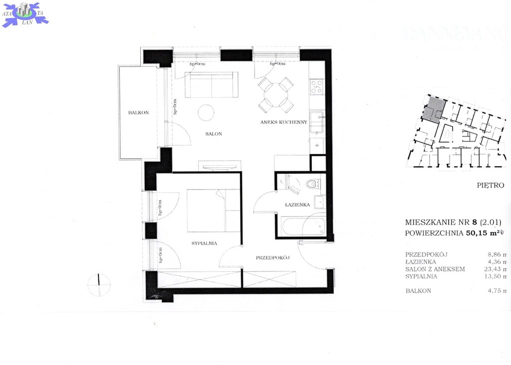
OPIS MIESZKANIA mieszkanie 2 pokojowe o powierzchni 50,15 m2, z wyjściem na balkon o powierzchni 4,75 m2. Pokój z aneksem kuchennym o powierzchni 23,03 m2, sypialnia 16,83 m2, łazienka 3,75 m2, przedpokój 5,42 m2. Balkon od strony południowej o powierzchni 4,75 m2. II piętro w V piętrowym budynku z windą. Wystawa okien południowa.
W mieszkaniu klimatyzacja, sterowanie ogrzewaniem za pomocą aplikacji, komfortowe maty grzewcze w łazienkach, system kontaktronów w oknach wyłączających ogrzewanie, hotelowy wyłącznik światła, już nie ma konieczności sprawdzania każdego pomieszczenia, jednym ruchem wyłączają się wszystkie lampy w mieszkaniu. Ponadto system Kontaktronów w oknach wyłączających ogrzewanie w przypadku otwarcia okna, okna trójszybowe. Ogrzewanie i ciepła woda z Szczecińskiej Energetyki Cieplnej (SEC). W budynku nie ma gazu. Niski czynsz.
Przewidywany czas udostępnienia mieszkania grudzień 2025 roku.
Miejsce postojowe w garażu podziemnym w cenie 90.000 zł.
OPIS BUDYNKU budynek wybudowany z bloczków silikatowych.
Dodatkowe informacje: balkon, winda, garaż