Opis
Prezentujemy Państwu na sprzedaż domy w zabudowie szeregowej o pow. użytkowej 75,7 m2 ( całkowita 89 m2) w nowopowstającej inwestycji blisko lasu w gm. Dobra.
Do sprzedaży 4 domy.
Ceny są uzależnione od wielkości działki
Dom I - 104 m2 działki - 723 000 ZŁ
Dom II - 45 m2 działki - 699 000 ZŁ
Dom III - 66 m2 działki - 713 000 ZŁ
Dom IV - 173 m2 działki - 743 000 ZŁ
Usytuowanie ogrodów - południowy wschód
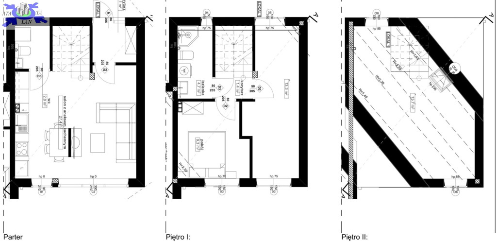
Na powierzchnię domu składają się 3 poziomy.
I Poziom - salon z aneksem kuchennym o pow. ok. 27,5 m2, WC, korytarz oraz schowek
II Poziom - 2 sypialnie o pow. ok 9.5 m2 i 13, 5 m2, łazienka oraz korytarz
II Poziom - sypialnia o pow. ok. 13,5 m2
Do każdego domu przynależą 2 miejsca postojowe - płatne dodatkowo 26 000 zł.
Domy będą oddane w standardzie deweloperskim. Ogrzewanie - pompa ciepła + podłogowe. Dodatkowo przygotowanie instalacji elektrycznej pod fotowoltaikę.
Okna PCV 3 szybowe.
Brak Podatku PCC !
Domy w bardzo klimatycznym miejscu, przy lesie. Okolica gwarantuje dużo miejsc do rekreacji a także dobry dostęp do komunikacji miejskiej oraz punktów usługowo-handlowych.
Szczególnie polecamy ze względu na lokalizację!
Zapraszamy na prezentacje