Opis
Aloha Residence to inwestycja, która zajęła 1 miejsce w rankingu rynekpierwotny.pl wśród szczecińskich inwestycji, które cieszyły się największym zainteresowaniem, a przy tym posiadały wysoki standard wykonania.
Atmosfera tej inwestycji łączy w sobie luksus z wygodą życia w centrum miasta.
Budynek oferuje całodobowy monitoring, przeszklone windy, parking podziemny ze stacją do ładowania elektryków, a jego apartamenty oferują panoramiczne okna, klimatyzację, grzejniki panelowe oraz balkony i tarasy.
Dodatkowo, budynek jest częściowo zasilany energią odnawialną, pozyskiwaną z kolektorów słonecznych umieszczonych na dachu budynku.
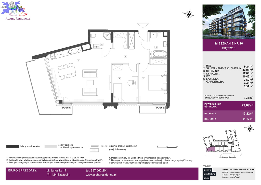
Oferta dotyczy 3-pokojowego apartamentu o powierzchni 79,07 m2 od strony północno-zachodniej i zachodniej. Apartament w stanie deweloperskim, stan do wykończenia.
Apartament posiada dwa balkony o powierzchni 13.22mkw oraz 2.65mkw
Istnieje możliwość dokupienia miejsca parkingowego w parkingu podziemnym (122 000 PLN/szt.) oraz komórki lokatorskiej (7900 PLN/m2).
W ofercie tej inwestycji posiadamy również inne apartamenty o zróżnicowanych parametrach. Istnieje możliwość wykończenia pod klucz.
Polecamy ta wyjątkową inwestycją i zapraszamy na prezentację.
Dodatkowe informacje: balkon, internet, TV kablowa, winda, parking