Kursy walut NBP: USD 3,98 | EUR 4,32 | CHF 4,53 |

Jesteśmy członkiem:           

Wyszukiwarka
Notes
Zgłoś ofertę
Kalkulator
zgłoś ofertę
Mieszkania
Domy
Działki
Lokale
Obiekty
Szczegóły oferty
Rodzaj oferty
lokal ( wynajem )
Numer oferty
434004
Miejscowość
ŚWINOUJŚCIE
Cena
12 300 PLN
Cena za mkw
107,28 PLN mkw
Powierzchnia
114.65 m2
Liczba pokoi
5
Liczba pięter
3
Rok budowy
1964
Opis
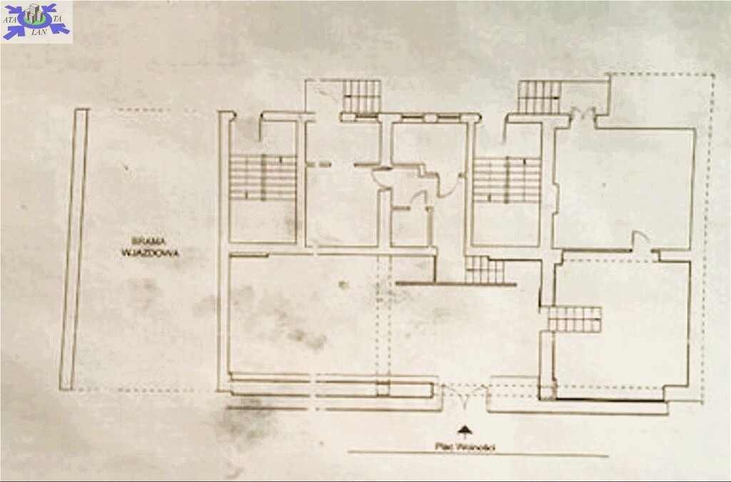
Oferujemy na wynajem lokal użytkowy usytuowany w parterze budynku apartamentowo-usługowego na Placu Wolności w ścisłym centrum Świnoujścia.

Oferowany lokal ma powierzchnię 114,65 m 2 i składa się z pięciu pomieszczeń / sala sprzedaży 51,11 m2, zaplecze 20,78 m2, magazyn 19,98 m2, korytarz 4,84 m2, pomieszczenie socjalne ,28 m2, wc 1,75 m2/, wysokość pomieszczeń 3,6 i 2,50 m.

Idealnie nadaje się na działalność gastronomiczną, handlową, sklep.

Czynsz do wspólnoty wynosi 1000 zł/miesiąc i na tą wartość składają się opłaty na zaliczkę na poczet zimnej , fundusz remontowy, koszty zarządu nieruchomością wspólną. Dodatkowo najemca opłaca koszt zużycia gazu, prądu.

Ponadto, lokal z racji położenia, ścisłe centrum - idealnie nadaje się na gabinety, kancelarię, szeroko rozumiane usługi.

Super lokalizacja (najlepsza w mieście), duże możliwości aranżacyjne i atrakcyjna cena wynajmu to główne atuty oferowanej nieruchomości. Zapraszamy na prezentację.

Lokal wynajmowany jest z Vat i w cenie najmu zawarty jest należny podatek 23%

Kontakt do agenta

Atalanta Nieruchomości
Marii Konopnickiej 32
71-132 Szczecin
tel.: 914875042
email: info@atalanta.szczecin.pl
fax: 914875031

Wyślij zapytanie

Imię i Nazwisko
Telefon
E-mail
Treść zapytania

Wyrażam zgodę na przetwarzanie moich danych osobowych przez firmę dla celów związanych z działalnością pośrednictwa w obrocie nieruchomościami, jednocześnie potwierdzam, iż zostałem poinformowany o tym, iż będę posiadać dostęp do treści swoich danych do ich edycji lub usunięcia.

Wyślij ofertę

E-mail
© 2025 Atalanta Nieruchomości. Wszystkie prawa zastrzeżone.