Rodzaj oferty
dom blizniak ( sprzedaż )
Opis
Dom w cenie mieszkania ! Świetna oferta !
Oferujemy na sprzedaż dom w zabudowie bliźniaczej w Żarowie, położonego zaledwie 5 km od Stargardu i 30 km os Szczecina.
Nieruchomość mieści się na działce o powierzchni 473 m2, w bliskim sąsiedztwie lasu oraz na nowo powstającym osiedlu domków jednorodzinnych.
Dom oddawany jest w stanie deweloperskim
Stan obejmuje
- Ocieplenie 20 cm styropianem
- Elewacja
- Okna trzyszybowe
- Drzwi antywłamaniowe
- Dachówka ceramiczna
- Szczelne szambo
- Instalacja elektryczna
- Instalacja wodno-kanalizacyjna
- Tynki
- Ogrzewanie podłogowe
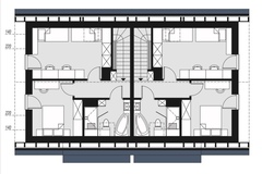
Na powierzchnię 82,45 m2 ( 71,28 m2 użytkowej ) składają się
Parter
- Wiatrołap 3,65 m2
- Kotłownia 4,41 m2
- Toaleta 2,69 m2
- Salon z jadalnią, aneksem kuchennym oraz bezpośrednim wyjściem na taras 28,81 m2
Pietro
- 2 sypialnie 12,04 m2 , 10 m2
- Łazienka 4 m2
Dom wykończony materiałami najwyższej jakości, a projekt jest zgodny z aktualnymi normami dotyczącymi energooszczędności.
Lokalizacja
Nieruchomość znajduje się w Żarowie, 5 km od Stargardu, 30 km od prawobrzeżnej części Szczecina, w otoczeniu zieleni.
Bardzo spokojna i cicha okolica.
Przyszli właściciele mogą liczyć na ciszę i spokój, a jednocześnie na dogodny dojazd Stargardu.
Planowany termin ukończenia inwestycji to IV kwartał 2024 roku.
Istnieje możliwość doprowadzenia domu do stanu deweloperskiego po wcześniejszym uzgodnieniu warunków.
Zachęcamy do zapoznania się z nasza ofertą i serdecznie zapraszamy na prezentację.