Kursy walut NBP: USD 3,98 | EUR 4,32 | CHF 4,53 |

Jesteśmy członkiem:           

Wyszukiwarka
Notes
Zgłoś ofertę
Kalkulator
zgłoś ofertę
Mieszkania
Domy
Działki
Lokale
Obiekty
Szczegóły oferty
Rodzaj oferty
obiekt produkcyjno_magazynowy ( sprzedaż )
Numer oferty
410455
Miejscowość
SZCZECIN, ZAWADZKIEGO
Cena
2 400 000 PLN kalkulator
Cena za mkw
5 198 PLN mkw
Powierzchnia
500.00 m2
Rok budowy
1980
Droga dojazdowa
asfaltowa
Opis
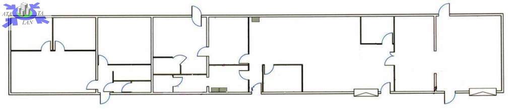
Na sprzedaż obiekt magazynowo - handlowy, murowany, o powierzchni ok. 500m2 (wymiary zewnętrzne ok 10x50 m) z wysokimi sufitami (ok.3,2m w najniższych miejscach do prawie 5m w najwyższych) w Szczecinie na Pogodnie.

Obiekt w dobrym stanie technicznym do ewentualnego odświeżenia. Posiada 2 bramy wjazdowe, wys. 2,5m szer. 2,9m. Świetna lokalizacja blisko głównej ulicy, umożliwia dobry dojazd samochodów dostawczych. Obiekt doskonały na wszelkiego rodzaju usługi, składy budowlane, hurtownie, handel, produkcję itp.
Pomieszczenia pomieszczenie biurowe z łazienka. Szatnie dla pracowników, pomieszczenie socjalne. Obiekt stanowiący odrębną własność, na działce ok. 1.700m2 (w użytkowaniu wieczystym), media (energia elektryczna, siła, kanalizacja, woda).
Opłata za użytkowanie wieczyste - 22.000 zł. na rok.

Zapraszamy na prezentację !



Kontakt do agenta

Atalanta Nieruchomości
Marii Konopnickiej 32
71-132 Szczecin
tel.: 914875042
email: info@atalanta.szczecin.pl
fax: 914875031

Wyślij zapytanie

Imię i Nazwisko
Telefon
E-mail
Treść zapytania

Wyrażam zgodę na przetwarzanie moich danych osobowych przez firmę dla celów związanych z działalnością pośrednictwa w obrocie nieruchomościami, jednocześnie potwierdzam, iż zostałem poinformowany o tym, iż będę posiadać dostęp do treści swoich danych do ich edycji lub usunięcia.

Wyślij ofertę

E-mail
© 2025 Atalanta Nieruchomości. Wszystkie prawa zastrzeżone.