Kursy walut NBP: USD 3,98 | EUR 4,32 | CHF 4,53 |

Jesteśmy członkiem:           

Wyszukiwarka
Notes
Zgłoś ofertę
Kalkulator
zgłoś ofertę
Mieszkania
Domy
Działki
Lokale
Obiekty
Szczegóły oferty
Rodzaj oferty
działka ( sprzedaż )
Numer oferty
433325
Miejscowość
SZCZECIN, DĄBIE
Cena
2 900 000 PLN kalkulator
Cena za mkw
888,75 PLN mkw
Powierzchnia
3263.00 m2
Droga dojazdowa
asfaltowa
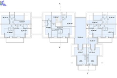
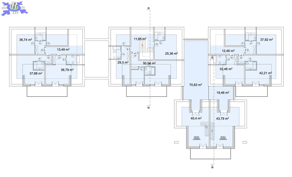
Opis
Na sprzedaż nieruchomość gruntowa z wydanymi Warunkami zabudowy, dla budynków wielorodzinnych.

Warunki zabudowy
- budynek mieszkalny wielorodzinny,
- powierzchnia zabudowy 25-33 %,
- pow. biologicznie czynna 25 %,
- szerokość elewacji frontowej 15..0-17.0 m,
- całkowita szerokość budynku 62 m,
- wysokość elewacji frontowej 7.4 m,
- dachy budynku kopertowe do 12 m, kąt nachylenia 30-35 stopni,
- dach łączników do 15 stopni,,
- możliwość podłączenia do wszystkich sieci,
- ogrzewanie budynku gazem z możliwością podłączenie pompy ciepła.

Wstępna koncepcja przewiduje budynek 3 klatkowy, po 15 mieszkań w klatce.
W każdej klatce 2 mieszkania II-poziomowe z tarasami.
Łącznie 1.700 PUM



Dodatkowe informacje: media - prąd, media - gaz, media - woda

Kontakt do agenta

Atalanta Nieruchomości
Marii Konopnickiej 32
71-132 Szczecin
tel.: 914875042
email: info@atalanta.szczecin.pl
fax: 914875031

Wyślij zapytanie

Imię i Nazwisko
Telefon
E-mail
Treść zapytania

Wyrażam zgodę na przetwarzanie moich danych osobowych przez firmę dla celów związanych z działalnością pośrednictwa w obrocie nieruchomościami, jednocześnie potwierdzam, iż zostałem poinformowany o tym, iż będę posiadać dostęp do treści swoich danych do ich edycji lub usunięcia.

Wyślij ofertę

E-mail
© 2025 Atalanta Nieruchomości. Wszystkie prawa zastrzeżone.