Kursy walut NBP: USD 3,98 | EUR 4,32 | CHF 4,53 |

Jesteśmy członkiem:           

Wyszukiwarka
Notes
Zgłoś ofertę
Kalkulator
zgłoś ofertę
Mieszkania
Domy
Działki
Lokale
Obiekty
Szczegóły oferty
Rodzaj oferty
lokal ( wynajem )
Numer oferty
431875
Miejscowość
SZCZECIN, ŚRÓDMIEŚCIE-CENTRUM
Cena
8 610 PLN
Cena za mkw
30 PLN mkw
Powierzchnia
287.00 m2
Liczba pięter
2
Rok budowy
1930
Droga dojazdowa
asfaltowa
Opis
Powierzchnia 271 m2 położona na parterze budynku biurowo-usługowego, która może być wykorzystywana zarówno na biuro, magazyn jak i cichą produkcję lub w innym dowolnym celu. Lokalizacja na obrzeżach Centrum.

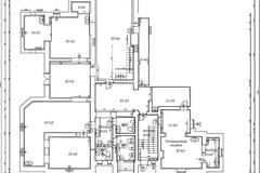
Oferowana powierzchnia składa się z 10 pomieszczeń, z których 6 posiada okna.
Do lokalu prowadzą 4 wejścia dwa z głównych wejścia do budynku poprzez klatkę schodową oraz hol, oraz dwa bezpośrednio z zewnątrz. Jedno z wejść stanowią szerokie drzwi, poprzez które można dostarczać towary na paletach z poziomu "0".

Możliwy jest wynajem mniejszej powierzchni, zgodnie z możliwościami podziału.

Na terenie nieruchomości kilka miejsc postojowych do wyłącznego korzystania przez najemcę oraz miejsca postojowe dostępne dla wszystkich najemców budynku. Ponadto na ulicy przed budynkiem znajdują się liczne ogólnodostępne miejsca parkingowe (SPP).

Powierzchnia świeżo po remoncie, zainstalowano wentylację mechaniczną oraz ogrzewanie podłogowe. Wymieniona instalacja elektryczna, ściany gładzone malowane, na podłogach niepyląca przemysłowa posadzka PCV, stolarka okienna i drzwiowa nowa. Na sufitach oświetlenie rastrowe.
Pomieszczenia o powierzchniach 47, 45, 41, 25, 20 m2, pomieszczenie socjalne z aneksem kuchennym i stołówką 37 m2, magazynek 10 m2 oraz 3 łazienki damska, męska i dla niepełnosprawnych ( w nowej glazurze i terakocie ) oraz korytarz. Wysokość pomieszczeń 2,80 m.

Koszt wynajmu wynosi 30 PLN netto/1 m2 (zawiera opłaty za wodę, śmieci, sprzątanie części wspólnych). Ogrzewanie indywidualne całego budynku (piec gazowy) rozliczane proporcjonalnie do zajmowanej powierzchni - ok. 850 zł w sezonie grzewczym). W poszczególnych pomieszczeniach ogrzewanie strefowe z manipulatorami. Rozprowadzona instalacja alarmowa i czujniki dymu.

Wymagana kaucja w wysokości jednomiesięcznego czynszu najmu brutto.

Doskonała lokalizacja, rozpoznawalne miejsce, szybki dojazd do ścisłego Centrum. Sąsiedztwo przystanków komunikacji miejskiej.


Dodatkowe informacje: parking

Kontakt do agenta

Atalanta Nieruchomości
Marii Konopnickiej 32
71-132 Szczecin
tel.: 914875042
email: info@atalanta.szczecin.pl
fax: 914875031

Wyślij zapytanie

Imię i Nazwisko
Telefon
E-mail
Treść zapytania

Wyrażam zgodę na przetwarzanie moich danych osobowych przez firmę dla celów związanych z działalnością pośrednictwa w obrocie nieruchomościami, jednocześnie potwierdzam, iż zostałem poinformowany o tym, iż będę posiadać dostęp do treści swoich danych do ich edycji lub usunięcia.

Wyślij ofertę

E-mail
© 2025 Atalanta Nieruchomości. Wszystkie prawa zastrzeżone.