Rodzaj oferty
działka budowlana ( sprzedaż )
Opis
Jedynie u nas znajdą Państwo tą nietuzinkową ofertę - uzbrojona działka budowlana z wydanym pozwoleniem na budowę !!!
Położona w bardzo urokliwym miejscu, nieopodal lasu, w miejscowości Żółwia Błoć.
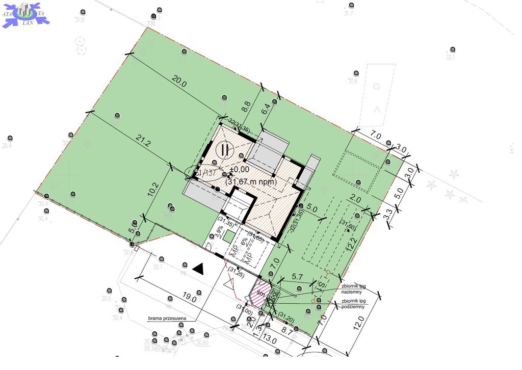
Jej pow. to 1777 m2, ma kształt prostokąta. Wymiary 53,5 m x 35,0 m. Wjazd na działkę od strony południowo-zachodniej.
Znajduje się w kompleksie 7 działek budowlanych, z dostępem do drogi prywatnej (ok. 100 m od osiedlowej drogi gminnej).
Uzbrojenie terenu
- prąd - w drodze wewnętrznej, bezpośrednio przy działce,
- wodociąg - w drodze wewnętrznej z wykonanym przyłączem na działce,
- kanalizacja - brak, zaprojektowana przydomowa biologiczna oczyszczalnia ścieków,
- gaz - brak gazu z sieci, zaprojektowana butla gazowa 2700 L.
W 2024 roku zostało wydane pozwolenie na budowę nowoczesnego i komfortowego domu jednorodzinnego z użytkowym poddaszem - projekt "Homekoncept 13 Energo" krakowskiej pracowni projektowej HomeKoncept.
Projekt idealnie został dopasowany do położenia i parametrów działki, a przede wszystkim potrzeb 4-5 osobowej rodziny, ceniącej sobie wysoki komfort mieszkania.
To bardzo nowoczesny projekt domu z dużymi przeszkleniami, które gwarantują doskonałe doświetlenie całego domu, nawet pochmurne dni.
Wnętrze mieści
- na parterze - salon z jadalnią oraz otwartą kuchnię ze spiżarką, sypialnię, hol, łazienkę, wiatrołap z garderobą oraz dwustanowiskowy garaż
wraz z pom. gospodarczym/kotłownią
- na poddaszu - trzy sypialnie, każda z indywidualną garderobą (1 z własną łazienką), łazienkę oraz hol z wyjściem na taras.
Podstawowe parametry budynku
- powierzchnia zabudowy - 200,24 m2,
- powierzchnia użytkowa - 186,09 m2
- wysokość budynku - 7,40 m
- kąt nachylenia dachu - 35 *
- szerokość elewacji frontowej - 18,95 m
Lokalizacja
Żółwia Błoć oddalona jest ok. 7 km od Goleniowa. Posiada doskonałą komunikację z drogą ekspresową S3 i S6 (Szczecin, Świnoujście, Gdańsk, Koszalin). W pobliskim Białuniu znajduje się tu szkoła podstawowa i przedszkole, stacja PKP, lokalny sklep wielobranżowy, darmowa komunikacja miejska do Goleniowa, sklep Dino.
Atrakcyjna oferta, spełnij marzenie o budowie domu w bardzo dobrej lokalizacji !
ZAPRASZAMY NA PREZENTACJE i DO SKŁADANIA OFERT ZAKUPU !
Dodatkowe informacje: media - prąd, media - woda