Kursy walut NBP: USD 3,98 | EUR 4,32 | CHF 4,53 |

Jesteśmy członkiem:           

Wyszukiwarka
Notes
Zgłoś ofertę
Kalkulator
zgłoś ofertę
Mieszkania
Domy
Działki
Lokale
Obiekty
Szczegóły oferty
Rodzaj oferty
mieszkanie ( sprzedaż )
Numer oferty
431668
Miejscowość
POLICE
Cena
515 554 PLN kalkulator
Cena za mkw
7 900 PLN mkw
Powierzchnia
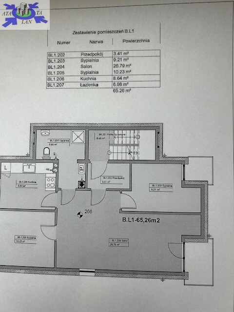
65.26 m2
Liczba pokoi
3
Piętro
1
Liczba pięter
2
Rodzaj kuchni
aneks
Stan mieszkania
do wykonczenia
Rok budowy
2025
Droga dojazdowa
asfaltowa
Opis
Police, mieszkanie 3 - pokojowe o powierzchni 65,26 m2 położone na I piętrze II piętrowego budynku wielorodzinnego z windą. Możliwość kupna miejsca postojowego w garażu podziemnym w cenie 26000 zł lub miejsca postojowego naziemnego w cenie 18000 zł.
Zestawienie powierzchni
- pokój - 9,21m2,
- pokój - 10,23 m2,
- pokój - 26,79 m2,
- łazienka - 6,98 m2,
- przedpokój - 3,41 m2,
- kuchnia 8,64 m2
Dwa balkony wyjście z dużego pokoju i wyjście z sypialni.
Standard wykończenia
Tradycyjna metoda budowy, ławy żelbetowe wylewane, ściany fundamentowe - bloczki betonowe. Ściany zewnętrzne, wewnętrzne oraz konstrukcyjne - silikat. Ściany działowe - beton komórkowy. Konstrukcja dachu - drewniana z folią paroprzepuszczalną. Pokrycie dachu - dachówka cementowa lub ceramiczna. Ocieplenie ścian budynku - styropian elewacyjny z mineralną wyprawą elewacyjną. Okna PCV bez szprosów 3-szybowe. Parapety zewnętrzne - stalowe lub PCV. Podłoża pod posadzki - betonowe. Parapety wewnętrzne - post forming. Instalacje - elektryczna, wodna, kanalizacyjna (bez rozprowadzeń), domofonowa, centralnego ogrzewania, grzejniki panelowe. Tynki gipsowe bez szpachlowania. Ocieplenie konstrukcji dachu wełną mineralną lub pianą PUR wraz z folią. Drzwi wejściowe do mieszkań w cenie lokalu. Drzwi wewnętrzne - brak.
Klatki schodowe - schody żelbetowe obłożone płytkami, balustrada stalowa, ściany tynkowane i malowane, dźwigi osobowe. Płyta balkonowa wykończona powłoką malarską.
Police, znajdują się w zachodniej części woj. zachodniopomorskiego, we wschodniej części powiatu polickiego. Miasto wchodzi w skład aglomeracji szczecińskiej. Bardzo dobrze skomunikowane ze Szczecinem. Od 2026 roku ruszy szybka kolej miejska, co jeszcze bardziej ułatwi transport.
W ramach inwestycji powstaje budynek z 36 mieszkaniami 4-kondygnacyjny o zróżnicowanych powierzchniowo mieszkaniach oraz garaże i lokale usługowe na parterze budynku. Mieszkania na I poziomie mieszkalnym będą miały przynależne powierzchni tarasowe.
Pozostałe mieszkania w większości będą miały balkony. Każde z mieszkań posiada funkcjonalny układ i dobre nasłonecznienie.
Nieruchomość jest bardzo dobrze skomunikowane a jednocześnie położone w drugiej linii zabudowy, co powoduje że nie dociera szum ruchu ulicznego.
W ramach inwestycji udzielana będzie nabywcy gwarancji jakości na lokal. Gwarancja obejmuje roboty budowlane na okres 3 lat oraz 12 miesięcy na materiały budowlane lub według gwarancji producenta.
Przewidywany termin wydania mieszkania grudzień 2025 roku.


Dodatkowe informacje: balkon, internet, TV kablowa, winda, garaż, parking

Kontakt do agenta

Atalanta Nieruchomości
Marii Konopnickiej 32
71-132 Szczecin
tel.: 914875042
email: info@atalanta.szczecin.pl
fax: 914875031

Wyślij zapytanie

Imię i Nazwisko
Telefon
E-mail
Treść zapytania

Wyrażam zgodę na przetwarzanie moich danych osobowych przez firmę dla celów związanych z działalnością pośrednictwa w obrocie nieruchomościami, jednocześnie potwierdzam, iż zostałem poinformowany o tym, iż będę posiadać dostęp do treści swoich danych do ich edycji lub usunięcia.

Wyślij ofertę

E-mail
© 2025 Atalanta Nieruchomości. Wszystkie prawa zastrzeżone.