Opis
Przedstawiamy do sprzedaży atrakcyjne mieszkanie w stanie deweloperskim, usytuowane w niskim budynku z windą, w malowniczej lokalizacji Mierzyna. Nieruchomość idealna dla osób ceniących komfort oraz nowoczesne rozwiązania.
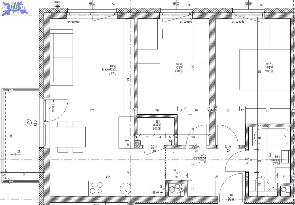
Powierzchnia mieszkania obejmuje
Przestronny salon z aneksem kuchennym Sypialnia 1Sypialnia 2Pom. gospodarczeŁazienka z WC Przedpokój
Mieszkanie sprzedawane w standardzie deweloperskim!
Możliwość zakupu miejsca parkingowego w hali garażowej (winda zjeżdża na poziom -1) w cenie od 40 000 zł.
Ogrzewanie oraz ciepła woda z systemu SEC zapewniają komfort przez cały rok.
Inwestycja zakończona, możliwość wydania kluczy od zaraz!
Serdecznie zapraszamy do zapoznania się z ofertą!