Kursy walut NBP: USD 3,98 | EUR 4,32 | CHF 4,53 |

Jesteśmy członkiem:           

Wyszukiwarka
Notes
Zgłoś ofertę
Kalkulator
zgłoś ofertę
Mieszkania
Domy
Działki
Lokale
Obiekty
Szczegóły oferty
Rodzaj oferty
mieszkanie ( sprzedaż )
Numer oferty
420052
Miejscowość
SZCZECINEK
Ulica
Bolesława Limanowskiego
Cena
490 000 PLN kalkulator
Cena za mkw
4 252 PLN mkw
Powierzchnia
115.24 m2
Liczba pokoi
3
Liczba pięter
2
Stan mieszkania
bardzo dobry
Rok budowy
1934
Opis
Obniżka CENY !!!

Na sprzedaż przestronne 3 pokojowe mieszkanie w centrum Szczecinka. Klimatyczna nieruchomość 2 lata temu przeszła gruntowny remont. Nowa instalacja elektryczna oraz hydrauliczna. Ciepła woda z piecyka gazowego. Wymienione zostały również okna na PCV. Dwa źródła ogrzewania klimatyczny kominek z rozprowadzeniem ciepła do wszystkich pomieszczeń oraz piec na EKOgroszek znajdujący się w piwnicy. Częściowo zamontowano ogrzewanie podłogowe. Możliwość własnej aranżacji werandy.


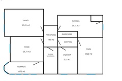
Mieszkanie składa się z
- Salon 29,01 m2
- Pokój 25,73 m2
- Pokój 10,22 m2
- Kuchnia 16,41 m2
- Łazienka 5,22 m2
- Weranda 16,72 m2
- Garderoba oraz spiżarnia



Dodatkowo przynależą do mieszkania, aż 2 piwnice o powierzchni ok 60 m2, które można zaadoptować pod lokal na działalność gospodarczą. Możliwość zrobienia osobnego wejścia od ulicy.
Prywatne podwórko częściowo ogrodzone oraz monitorowane.
Bezpieczny teren z możliwością rekreacji. Dwa miejsca parkingowe przypisane do posesji.
Trzy pomieszczenia gospodarcze.
Kamienica oraz klatka schodowa są odnowione.
Okolica spokojna, sąsiedzi ugodowi.

Cena podlega negocjacji.


Zapraszam do kontaktu i obejrzenia nieruchomości.





Dodatkowe informacje: piwnica, parking, komórka

Kontakt do agenta

Atalanta Nieruchomości
Marii Konopnickiej 32
71-132 Szczecin
tel.: 914875042
email: info@atalanta.szczecin.pl
fax: 914875031

Wyślij zapytanie

Imię i Nazwisko
Telefon
E-mail
Treść zapytania

Wyrażam zgodę na przetwarzanie moich danych osobowych przez firmę dla celów związanych z działalnością pośrednictwa w obrocie nieruchomościami, jednocześnie potwierdzam, iż zostałem poinformowany o tym, iż będę posiadać dostęp do treści swoich danych do ich edycji lub usunięcia.

Wyślij ofertę

E-mail
© 2025 Atalanta Nieruchomości. Wszystkie prawa zastrzeżone.