Kursy walut NBP: USD 3,98 | EUR 4,32 | CHF 4,53 |

Jesteśmy członkiem:           

Wyszukiwarka
Notes
Zgłoś ofertę
Kalkulator
zgłoś ofertę
Mieszkania
Domy
Działki
Lokale
Obiekty
Szczegóły oferty
Rodzaj oferty
dom blizniak ( sprzedaż )
Numer oferty
431081
Miejscowość
SZCZECIN, BEZRZECZE
Cena
1 199 000 PLN kalkulator
Cena za mkw
9 367,19 PLN mkw
Powierzchnia
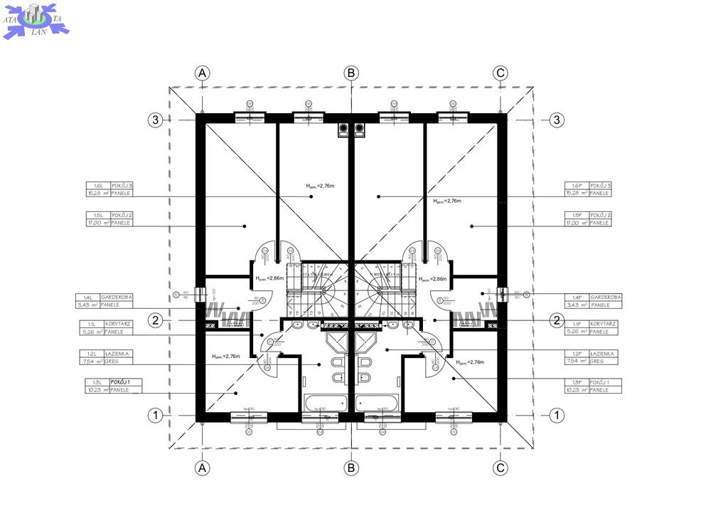
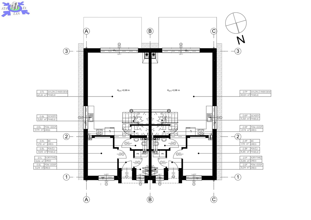
128.00 m2
Pow. działki
450.00 m2
Liczba pokoi
5
Liczba pięter
1
Stan domu
idealny
Rok budowy
2025
Droga dojazdowa
z kostki brukowej
Opis
Zapraszamy do zapoznania się z ofertą powstającej inwestycji, sześciu lokali mieszkalnych w zabudowie bliźniaczej położonych na Starym Bezrzeczu.
Inwestycja usytuowana w cichym, zielonym zaułku w szczecińskiej części dzielnicy. Na sporych ogródkach deweloper pozostawił dużo drzew i krzewów, które tworzą niepowtarzalny klimat.
Domy budowane są z bloczków silikatowych ocieplonych styropianem 15 cm ,dach pokryty dachówką ceramiczną ocieplony pianą pur, okna PCV, ściany tynki gipsowe. CO i CW własne gazowe w całości ogrzewanie podłogowe.Nieruchomość rozłożona jest na dwóch kondygnacjach, na pierwszej znajduje się salon, kuchnia, łazienka oraz gabinet. Piętro to 3 sypialnie oraz łazienka. Do każdego lokalu przynależą po dwa miejsca postojowe oraz ogródki ok. 450 m2. Planowany termin zakończenia prac grudzień 2025 r.. Blisko szkoła, komunikacja miejska oraz sieci handlowe.
Zapraszam na prezentację.



Dodatkowe informacje: garaż

Kontakt do agenta

Atalanta Nieruchomości
Marii Konopnickiej 32
71-132 Szczecin
tel.: 914875042
email: info@atalanta.szczecin.pl
fax: 914875031

Wyślij zapytanie

Imię i Nazwisko
Telefon
E-mail
Treść zapytania

Wyrażam zgodę na przetwarzanie moich danych osobowych przez firmę dla celów związanych z działalnością pośrednictwa w obrocie nieruchomościami, jednocześnie potwierdzam, iż zostałem poinformowany o tym, iż będę posiadać dostęp do treści swoich danych do ich edycji lub usunięcia.

Wyślij ofertę

E-mail
© 2025 Atalanta Nieruchomości. Wszystkie prawa zastrzeżone.