Kursy walut NBP: USD 3,98 | EUR 4,32 | CHF 4,53 |

Jesteśmy członkiem:           

Wyszukiwarka
Notes
Zgłoś ofertę
Kalkulator
zgłoś ofertę
Mieszkania
Domy
Działki
Lokale
Obiekty
Szczegóły oferty
Rodzaj oferty
dom blizniak ( sprzedaż )
Numer oferty
383727
Miejscowość
BUK
Cena
2 490 000 PLN kalkulator
Cena za mkw
13 584,29 PLN mkw
Powierzchnia
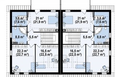
183.30 m2
Pow. działki
578.00 m2
Liczba pokoi
5
Liczba pięter
1
Rodzaj kuchni
otwarta
Stan domu
bardzo dobry
Rok budowy
2020
Droga dojazdowa
utwardzona
Opis
Na sprzedaż wyjątkowy, nowoczesny dom pasywny w zabudowie bliźniaczej. Parter domu składa się z przestronnego salonu ( kominek z płaszczem wodnym), dużej kuchni wraz ze spiżarnią. Korytarz z którego jest przejście do garażu, toalety i pomieszczenia gospodarczego. Na piętro prowadzą łądnie wykończone schody gdzie znajdyją sie trzy sypialnie, duża łazienka z oknem w nowoczesnej terakocie i glazurze. Poddasze domu zostało zaaranżowane na dodatkowy pokój. Dom położony w malowniczej okolicy, tuż przy lesie i ścieżkach rowerowych, które łączą okoliczne miejscowości. To idealne miejsce dla osób szukających ciszy, spokoju i bliskości natury, a zarazem wygodnego dostępu do miasta i innych atrakcji. Dom znajduje się na poboczu, co zapewnia prywatność oraz możliwość wypoczynku z dala od miejskiego zgiełku.
W cenie dom zostanie w pełni wykończony ( łazienki, drzwi, listwy futryny itp) . Każdy detal został starannie dopracowany, a właściciel zadba o to, by całe wnętrze było wykończone na najwyższym poziomie. W kuchni znajduje się duża, na wymiar zaprojektowana zabudowa, a także nowoczesny sprzęt AGD, co sprawia, że przestrzeń ta jest zarówno funkcjonalna, jak i estetyczna.
Dom otoczony jest solidnym, pionowym ogrodzeniem, które zapewnia bezpieczeństwo i prywatność. Wszystkie instalacje zostały wykonane z najwyższą starannością, co gwarantuje komfort mieszkania przez długie lata. Jest to nieruchomość, która nie tylko spełnia wymagania ekologiczne, ale również zapewnia doskonałe warunki do codziennego życia.


Poniżej dane techniczne.

- 154m2 + 20m2 garaż
- działka 580m2
- budynek pasywny
- ściany wykonane z cegły Ytong Energo pro (pióro + wpust) klasa 350 (najwyższa) o grubości 24cm - zgodnie z obowiązującą normą budowlaną przy tej cegle nie potrzeba w ogóle styropianu
- na ścianach styropian Yeticco Passive grafitowy z frezem o grubości 20cm
- na podłodze (parter) folia onduterm - odpowiednik 10cm styropianu + 15cm styropianu grafitowego Yeticco passive podłoga
- dodatkowo poddasze zaadaptowane na pokój wraz z WC dla gości (39m2 po podłodze)
- dach zbudowany jest z następujących warstw licząc od dachówki do środka
* dachówka angobowana grafitowa płaska
* papa
* płyta OSB 18mm (pióro - wpust)
* folia paroprzepuszczalna
* pianka pur grubości 24cm
* folia onduterm - odpowiednik 10cm styropianu
* płyta OSB 18mm (pióro - wpust)
* płyta G-K
- ściany działowe na piętrze grubości 15cm (2 x płyta G-K, stelaż 10cm wypełniony wełną skalną rockwool, 2 x płyta G-K)
- ściany działowe na parterze murowane z silki 12 cm
- okna 3 szybowe do domów pasywnych
- drzwi antywłamaniowe


INSTALACJE
- gruntowy wymiennik ciepła (GWC ok 100m rury zakopanej na głębokości 2,5m) + rekuperacja
- kolektory słoneczne o mocy 10kW (ciepła woda + ogrzewanie domu) ustawione na całoroczne ogrzewanie budynku
- ogrzewanie podłogowe przystosowane pod kolektory słoneczne (rury co 15cm, a nie co 20-25cm)
- kominek z płaszczem wodnym
- wszystkie instalacje grzewcze (kominek+kolektory+piec gazowy) połączone w jedną instalację dzięki czemu maksymalnie wykorzystany każdy "J" energii
- instalacja fotowoltaiczna o mocy 5,5 kW
- instalacja (elektryczna + przepusty) przygotowana do instalacji przydomowej turbiny wiatrowej
- instalacja klimatyzacyjna dla każdego pomieszczenia (rury + kable)
- instalacja elektryczna dla inteligentnego domu (obejmuje również kable do czujek dymu, czadu, wilgotności, temperatury i nasłonecznienia)
- rekuperator ciepłej wody INNOVA BEE 1300 w prysznicu
- instalacja elektryczna przygotowana do ładowania auta w pełni elektrycznego (siła w 2 punktach w garażu)
- instalacja monitoringu IP
- własne ujęcie wody
- pełna automatyka

Przed domem właściciel wybudował wiate garażową wraz z pomieszczeniem na przechowywanie.

OKOLICA
- 300m do przystanku autobusowego komunikacji miejskiej
- 800m do lasu i ścieżki rekreacyjnej o długości ok 8km
- 2 km do jeziora
- dojazd drogą asfaltową + z betonowych płyt drogowych
- 10 min na pieszo do orlika

Dzięki wyjątkowej lokalizacji, bliskości przyrody oraz perfekcyjnemu wykończeniu, ten dom to doskonała okazja dla osób szukających harmonii z naturą, bez kompromisów w kwestii jakości życia. Zarezerwuj już teraz!


Dodatkowe informacje: ochrona, garaż

Kontakt do agenta

Atalanta Nieruchomości
Marii Konopnickiej 32
71-132 Szczecin
tel.: 914875042
email: info@atalanta.szczecin.pl
fax: 914875031

Wyślij zapytanie

Imię i Nazwisko
Telefon
E-mail
Treść zapytania

Wyrażam zgodę na przetwarzanie moich danych osobowych przez firmę dla celów związanych z działalnością pośrednictwa w obrocie nieruchomościami, jednocześnie potwierdzam, iż zostałem poinformowany o tym, iż będę posiadać dostęp do treści swoich danych do ich edycji lub usunięcia.

Wyślij ofertę

E-mail
© 2025 Atalanta Nieruchomości. Wszystkie prawa zastrzeżone.