Rodzaj oferty
lokal biurowy ( wynajem )
Opis
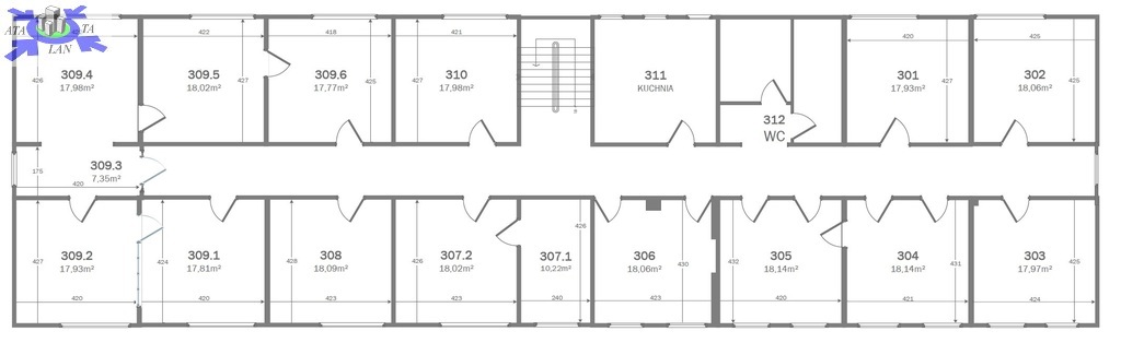
Na wynajem lokal mieszczący się na III piętrze w biurowcu znajdującym się przy pętli Pomorzany.
Biuro o powierzchni 96,79 m2, składające się z 5 klimatyzowanych pokoi.
Biura są po remoncie - gotowe do wynajęcia, na podłogach ułożono panele a ściany zostały odmalowane.
Na każdym piętrze znajduje się WC oraz pomieszczenie socjalne dostępne dla najemców.
Czynsz najmu wynosi od 46zł/m2 + VAT. (w czynszu wliczone są opłaty za wodę, ogrzewanie, śmieci). Dodatkowo płatny jest prąd według zużycia oraz Internet - 50 zł/mc (w budynku światłowód Orange).
Dla najemców dostępne są miejsca parkingowe na terenie obiektu w cenie 150 zł/mc za miejsce postojowe.
W budynku dostępne są biura o zróżnicowanych powierzchniach od 10 m2 do ok. 300 m2 (całe piętro). Istnieje możliwość aranżacji pomieszczeń według własnych potrzeb. Biura są przeznaczone do prowadzenia działalności biurowej oraz usługowej.
Zapraszam do kontaktu i na prezentację.
WYŁĄCZNOŚĆ