Kursy walut NBP: USD 3,98 | EUR 4,32 | CHF 4,53 |

Jesteśmy członkiem:           

Wyszukiwarka
Notes
Zgłoś ofertę
Kalkulator
zgłoś ofertę
Mieszkania
Domy
Działki
Lokale
Obiekty
Szczegóły oferty
Rodzaj oferty
lokal biurowy ( wynajem )
Numer oferty
427731
Miejscowość
SZCZECIN, ŚRÓDMIEŚCIE
Ulica
Jagiellońska
Cena
10 000 PLN
Cena za mkw
34,44 PLN mkw
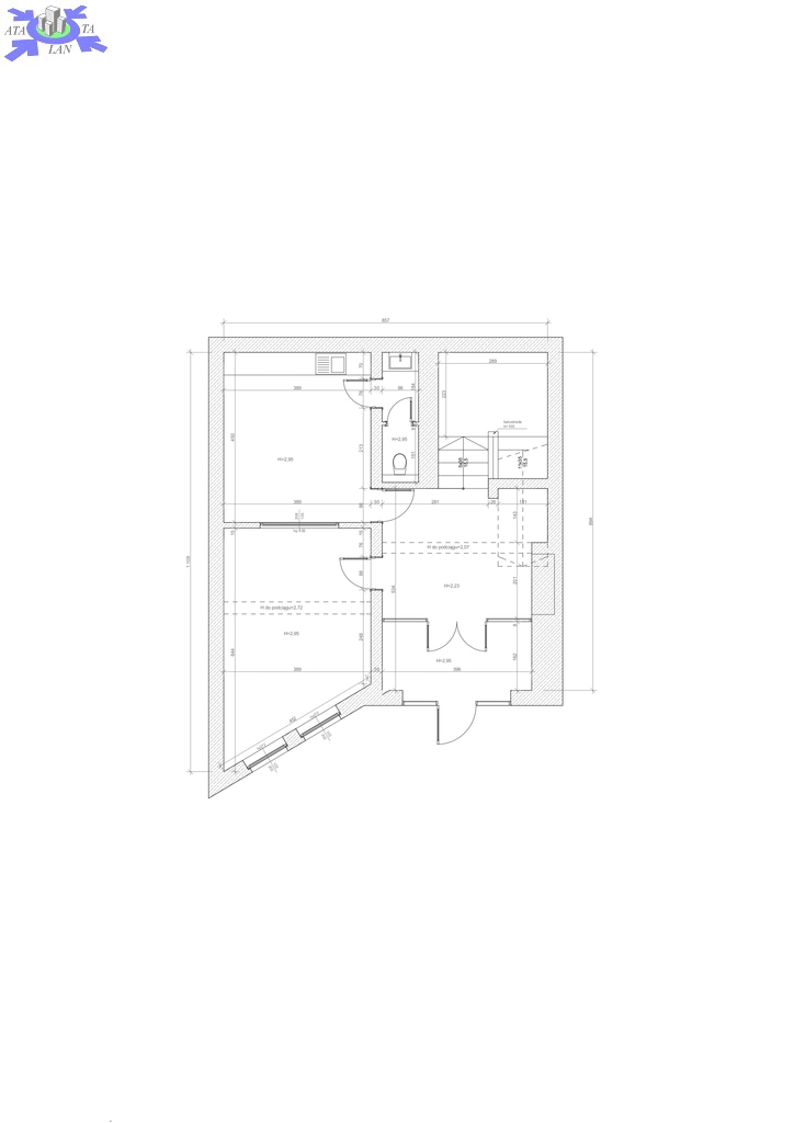
Powierzchnia
290.36 m2
Liczba pokoi
9
Liczba pięter
4
Rok budowy
1994
Droga dojazdowa
z kostki brukowej
Opis
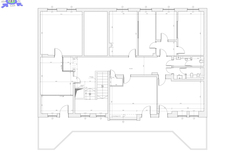
Wynajmę lokal w Szczecinie przy ul. Jagiellońskiej. Lokal znajduje się w drugiej linii zabudowy, posiada wejście bezpośrednio z podwórza (własne niezależne). Sporo miejsca na ewentualny szyld reklamę itp. Miejsce bardzo dobrze skomunikowane z Centrum, w bezpośrednim sąsiedztwie tramwaje i linie autobusowe. Budynek wybudowany w latach 90. Lokalizacja i obiekt idealny na siedzibę firmy, która potrzebuje dużej powierzchni biurowej szkoły językowej, firm medycznych itp.

Lokal składa się z 9 pomieszczeń biurowych w różnych wymiarach od 8,5m2 do 28m2, małej serwerowni, pomieszczenia socjalnego (kuchnia 17,6m2 umeblowana i wyposażona np. w zmywarkę), trzy toalety z nowoczesną armaturą.

Wszystkie pomieszczenia wykonane z bardzo dobrej jakości materiałów, w pomieszczeniach biurowych mamy wykładziny dywanowe, pomieszczenia socjalne i toalety w terakocie w nowoczesnym stylu.
Lokal posiada system alarmowy, domofon, i pełną instalację komputerowo- telefoniczną (gniazdka we wszystkich pomieszczeniach) osobne pomieszczenie na serwer gdzie zbiega się cała instalacja.
W większości pomieszczeń znajdują ujęcia wody i kanalizacji (aktualnie zaślepione) co jest wyjątkowo przydatne przy niektórych działalnościach. Trzy pomieszczenia posiadają wyjścia na wspólny taras. Okna wszystkie PCV.

Ogrzewanie własne piecem gazowym

Wydanie lokalu od ręki, oglądanie również.

Dodatkowe informacje: parking

Kontakt do agenta

Atalanta Nieruchomości
Marii Konopnickiej 32
71-132 Szczecin
tel.: 914875042
email: info@atalanta.szczecin.pl
fax: 914875031

Wyślij zapytanie

Imię i Nazwisko
Telefon
E-mail
Treść zapytania

Wyrażam zgodę na przetwarzanie moich danych osobowych przez firmę dla celów związanych z działalnością pośrednictwa w obrocie nieruchomościami, jednocześnie potwierdzam, iż zostałem poinformowany o tym, iż będę posiadać dostęp do treści swoich danych do ich edycji lub usunięcia.

Wyślij ofertę

E-mail
© 2025 Atalanta Nieruchomości. Wszystkie prawa zastrzeżone.