Kursy walut NBP: USD 3,98 | EUR 4,32 | CHF 4,53 |

Jesteśmy członkiem:           

Wyszukiwarka
Notes
Zgłoś ofertę
Kalkulator
zgłoś ofertę
Mieszkania
Domy
Działki
Lokale
Obiekty
Szczegóły oferty
Rodzaj oferty
mieszkanie ( sprzedaż )
Numer oferty
425496
Miejscowość
SZCZECIN, ŚRÓDMIEŚCIE-CENTRUM
Ulica
Andrzeja Małkowskiego
Cena
1 199 000 PLN kalkulator
Cena za mkw
6 348,68 PLN mkw
Powierzchnia
150.62 m2
Liczba pokoi
6
Piętro
3
Liczba pięter
4
Rok budowy
1935
Opis
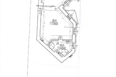
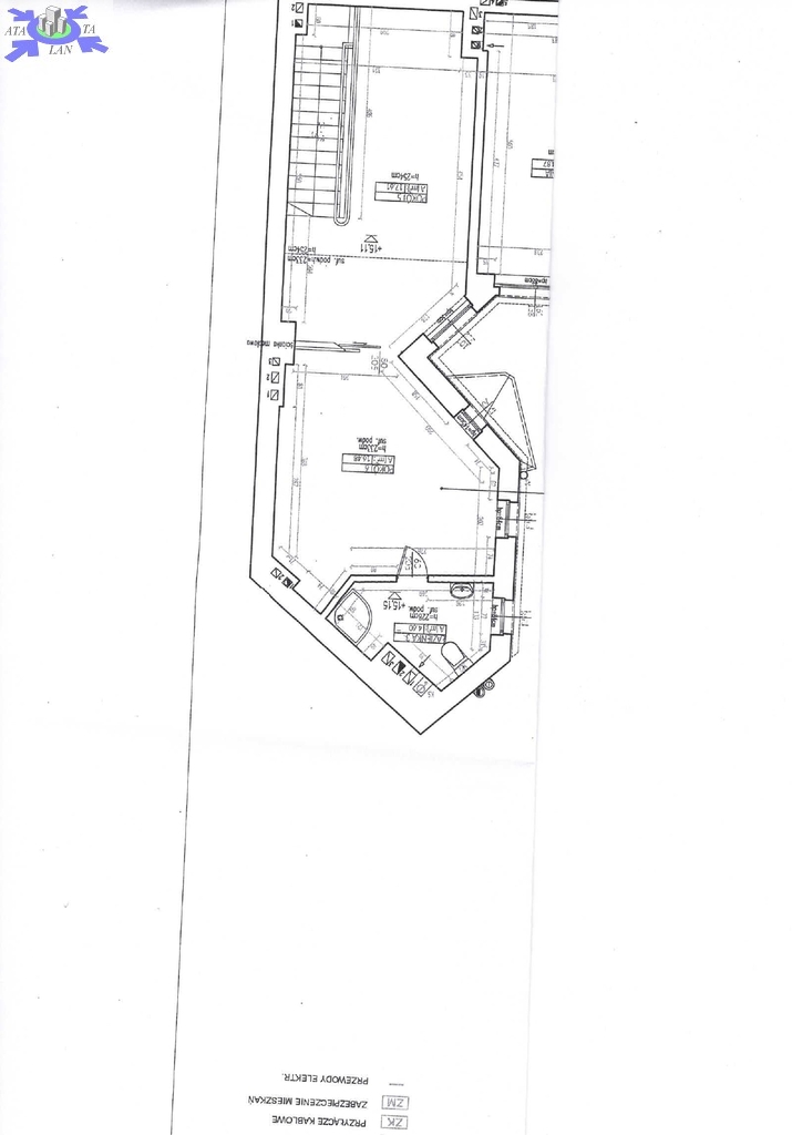
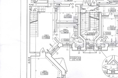
Polecam duże, dwupoziomowe ,6 pokojowe mieszkanie o pow.150 m2, na 3 piętrze kamienicy zlokalizowanej w samym centrum miasta przy ul. Małkowskiego.
Mieszkanie posiada 6 pokoi, 3 łazienki oraz 2 kuchnie.
Na pierwszym poziomie znajdują się 4 pokoje, 2 oddzielne kuchnie oraz 2 łazienki. Na poziom II prowadzą drewniane schody.
Na drugim poziomie znajdują się 2 pokoje, łazienka razem z wc.
Mieszkanie to może być potraktowane jako inwestycja ( 3 łazienki i 2 kuchnie pozwalają na stworzenie kilku kawalerek) lub jako mieszkanie dla większej rodziny.
Standard mieszkania -dobry. Okna PCV, na podłodze panele, ściany malowane.
Ogrzewanie i ciepła woda z pieca gazowego.
Do mieszkania przynależą 2 piwnice oraz 2 miejsca parkingowe na podwórku kamienicy.
Polecam



Dodatkowe informacje: umeblowane, parking

Kontakt do agenta

Atalanta Nieruchomości
Marii Konopnickiej 32
71-132 Szczecin
tel.: 914875042
email: info@atalanta.szczecin.pl
fax: 914875031

Wyślij zapytanie

Imię i Nazwisko
Telefon
E-mail
Treść zapytania

Wyrażam zgodę na przetwarzanie moich danych osobowych przez firmę dla celów związanych z działalnością pośrednictwa w obrocie nieruchomościami, jednocześnie potwierdzam, iż zostałem poinformowany o tym, iż będę posiadać dostęp do treści swoich danych do ich edycji lub usunięcia.

Wyślij ofertę

E-mail
© 2025 Atalanta Nieruchomości. Wszystkie prawa zastrzeżone.