Kursy walut NBP: USD 3,98 | EUR 4,32 | CHF 4,53 |

Jesteśmy członkiem:           

Wyszukiwarka
Notes
Zgłoś ofertę
Kalkulator
zgłoś ofertę
Mieszkania
Domy
Działki
Lokale
Obiekty
Szczegóły oferty
Rodzaj oferty
mieszkanie ( sprzedaż )
Numer oferty
424240
Miejscowość
MIĘDZYZDROJE
Ulica
Tysiąclecia Państwa Polskiego
Cena
890 000 PLN kalkulator
Cena za mkw
15 451,39 PLN mkw
Powierzchnia
57.60 m2
Liczba pokoi
2
Liczba pięter
1
Stan mieszkania
bardzo dobry
Rok budowy
1930
Droga dojazdowa
asfaltowa
Opis
Na sprzedaż bezczynszowe mieszkanie dwu pokojowe położone w spokojnej lokalizacji a zarazem blisko do centrum, zaledwie 200m do plaży oraz 50m do Wolińskiego Parku Narodowego.

Nie szukaj dalej! oferta na wyłączność.

Do mieszkania przynależna działka o powierzchni prawie 300m2 z wydzielonymi trzema miejscami parkingowymi z bezpośrednim wjazdem.

Nieruchomość z wydanym pozwoleniem na budowę, z gotowym projektem rozbudowy o dwie kondygnację dzięki czemu uzyskamy trzy lokale.

1 lokal - kawalerka z aneksem kuchennym o pow. 19,39m2
2 lokal - kawalerka z aneksem kuchennym o pow. 25,78m2
3 lokal - apartament 4 pokojowy dwu-poziomowy o pow. 99m2


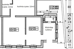
Można pozostać przy obecnym układzie, powierzchnia użytkowa 57,6m2 na którą składają się

- wiatrołap z szafa w zabudowie i z garderobą o pow. 8,5m2 z wejściem do pokoju o pow. 13,28m2
- salon o pow. 19,55m2 ( wejście z sypialni 13,28m2 )
- kuchnia o pow. ok. 12m2 z której jest wejście do łazienka o pow. ok. 11m2

Budynek a przede wszystkim mieszkanie wyremontowane w 2019r wymieniono
- nowe fundamenty z izolacją, nowe wylewki
- nowa instalacja elektryczna, kanalizacyjna - wodna oraz grzewcza
- nowe tynki
- nowy strop z ociepleniem - wełna mineralna

Nieruchomość do zamieszkania lub do prowadzenie dochodowego biznesu. Kwatery w tej lokalizacji wynajmują się cały rok.
Dodatkowym atutem nieruchomości jest brak czynszu oraz wydany komplet dokumentów do rozpoczęcia rozbudowy części tylnej.

Zapraszam na prezentację.

Dodatkowe informacje: telefon, internet, TV kablowa, garaż

Kontakt do agenta

Atalanta Nieruchomości
Marii Konopnickiej 32
71-132 Szczecin
tel.: 914875042
email: info@atalanta.szczecin.pl
fax: 914875031

Wyślij zapytanie

Imię i Nazwisko
Telefon
E-mail
Treść zapytania

Wyrażam zgodę na przetwarzanie moich danych osobowych przez firmę dla celów związanych z działalnością pośrednictwa w obrocie nieruchomościami, jednocześnie potwierdzam, iż zostałem poinformowany o tym, iż będę posiadać dostęp do treści swoich danych do ich edycji lub usunięcia.

Wyślij ofertę

E-mail
© 2025 Atalanta Nieruchomości. Wszystkie prawa zastrzeżone.