Kursy walut NBP: USD 3,98 | EUR 4,32 | CHF 4,53 |

Jesteśmy członkiem:           

Wyszukiwarka
Notes
Zgłoś ofertę
Kalkulator
zgłoś ofertę
Mieszkania
Domy
Działki
Lokale
Obiekty
Szczegóły oferty
Rodzaj oferty
działka komercyjna ( sprzedaż )
Numer oferty
412686
Miejscowość
KOŁBASKOWO
Cena
3 000 000 PLN kalkulator
Cena za mkw
350,22 PLN mkw
Powierzchnia
8566.00 m2
Droga dojazdowa
asfaltowa
Opis
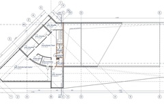
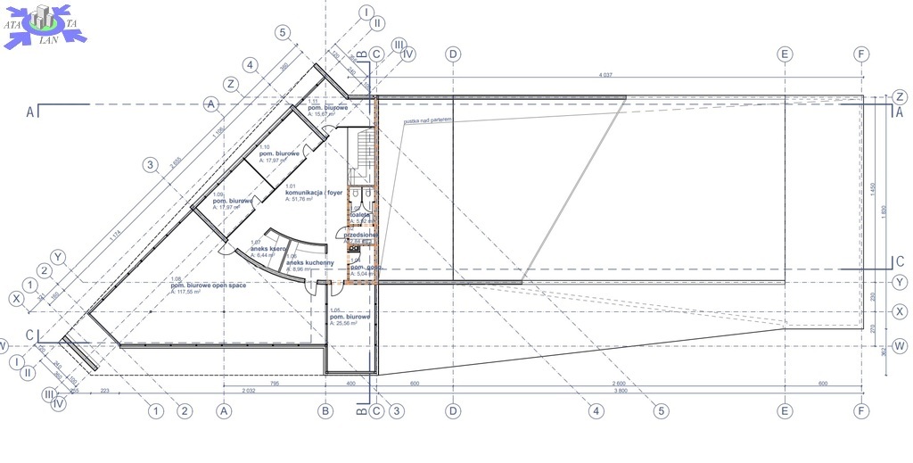
Działka z pozwoleniem na budowę budynku biurowo-mieszkalnego.

Na sprzedaż działka z projektem i pozwoleniem na budowę - w bardzo dobrej lokalizacji przy centrum logistycznym Amazon Kołbaskowo.
W okolicy stacja paliw Orlen i Lotos.
Powierzchnia działki to ok. 8566m2. Bezpośrednio przy Autostradzie A6 łączącej Berlin z Gdańskiem oraz drogą krajową nr 13, zjazd/wjazd - prawo i lewo skrętny z drogi krajowej numer 13.
Działka uzbrojona w media
- prąd (skrzynka ZK na działce)
- gaz, woda i kanalizacja bezpośrednio w drodze ok. 20-30m.
Działka jest bardzo widoczna , latem przejeżdża ok. 20 tys. pojazdów na dobę (wyliczenia GDDKiA).
Działka posiada projekt na ok. 530m2 powierzchni biurowej i mieszkalnej (3 kondygnacje) i możliwość w kolejnym etapie rozbudowy o magazyn o pow. 700m2 ( po przeniesieniu zjazdu, związanego z budową nowego węzła obwodnicy zachodniej Szczecina).
Więcej informacji udzielimy telefonicznie.


Dodatkowe informacje: kanalizacja, media - prąd, media - gaz, media - woda

Kontakt do agenta

Atalanta Nieruchomości
Marii Konopnickiej 32
71-132 Szczecin
tel.: 914875042
email: info@atalanta.szczecin.pl
fax: 914875031

Wyślij zapytanie

Imię i Nazwisko
Telefon
E-mail
Treść zapytania

Wyrażam zgodę na przetwarzanie moich danych osobowych przez firmę dla celów związanych z działalnością pośrednictwa w obrocie nieruchomościami, jednocześnie potwierdzam, iż zostałem poinformowany o tym, iż będę posiadać dostęp do treści swoich danych do ich edycji lub usunięcia.

Wyślij ofertę

E-mail
© 2025 Atalanta Nieruchomości. Wszystkie prawa zastrzeżone.