Kursy walut NBP: USD 3,98 | EUR 4,32 | CHF 4,53 |

Jesteśmy członkiem:           

Wyszukiwarka
Notes
Zgłoś ofertę
Kalkulator
zgłoś ofertę
Mieszkania
Domy
Działki
Lokale
Obiekty
Szczegóły oferty
Rodzaj oferty
działka budowlana ( sprzedaż )
Numer oferty
410701
Miejscowość
BORZYSZEWO
Cena
351 700 PLN kalkulator
Cena za mkw
100 PLN mkw
Powierzchnia
3517.00 m2
Droga dojazdowa
polna
Opis
25 km od morza
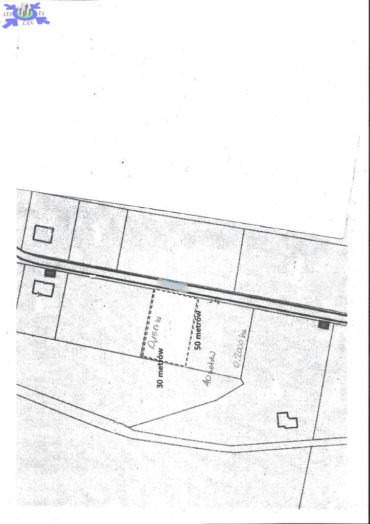
Działka budowlana, okolice Gryfic zachodniopomorskie, wydane warunki zabudowy dla budynku mieszkalnego jednorodzinnego wolnostojącego z możliwym poddaszem użytkowym , Powierzchnia zabudowy do 7%, szerokość elewacji frontowej do 15 m wysokość zabudowy do 9 m dach stromy dwu lub wielospadowy. Przewidziano przydomową oczyszczalnię ścieków i studnię. W 2021 wydano opinię geologiczną dla budowy budynku mieszkalnego z przydomową oczyszczalnią. Prąd w drodze. (ZK na działce)
Możliwość odstąpienia projektu domu o powierzchni 144 m2.

Nieruchomość składa się z 2 działek o powierzchni 1517 m2 i 2000 m2 (łącznie 3517 m2) , warunki wydane dla mniejszej działki, możliwość zakupu w całości lub oddzielnie.
W sąsiedztwie działki zabudowane- zabudowa jednorodzinna, niewielki lasek.
dojazd drogą gruntową,
Odległość do centrum Gryfic 2,5 km 5 minut jazdy, (sklepy, szkoły , szpital), dogodny dojazd nad morze ok 20 minut (Niechorze, Rewal)


Dodatkowe informacje: media - prąd, media - gaz

Kontakt do agenta

Atalanta Nieruchomości
Marii Konopnickiej 32
71-132 Szczecin
tel.: 914875042
email: info@atalanta.szczecin.pl
fax: 914875031

Wyślij zapytanie

Imię i Nazwisko
Telefon
E-mail
Treść zapytania

Wyrażam zgodę na przetwarzanie moich danych osobowych przez firmę dla celów związanych z działalnością pośrednictwa w obrocie nieruchomościami, jednocześnie potwierdzam, iż zostałem poinformowany o tym, iż będę posiadać dostęp do treści swoich danych do ich edycji lub usunięcia.

Wyślij ofertę

E-mail
© 2025 Atalanta Nieruchomości. Wszystkie prawa zastrzeżone.